Проекты домов Оформить
ипотеку
Стройматериалы Участки Строительство
Выберите свой регион строительства
Крымский федеральный округ
Крым
Close mobile menu

Характеристики дома:

Площадь дома

314 m2

Кол-во жилых комнат

5
Стоимость проекта АР+КР
104,100 ₽

Хотите изменить планировку?

Отправьте запрос архитектору и обсудите с ним ваши идеи по перепланировке.

О проекте

S3-314 (Zx125) Если вы хотите, чтобы ваш дом выглядел эффектно, рассмотрите в качестве варианта этот проект. Постройка притягивает внимание плоской крышей и огромной площадью остекления. Сосредоточившись на внешнем виде, дизайнеры не забыли и о спальнях. Они не менее комфортны. А вид из них открывается просто потрясающий благодаря панорамным окнам от пола и потолка. 

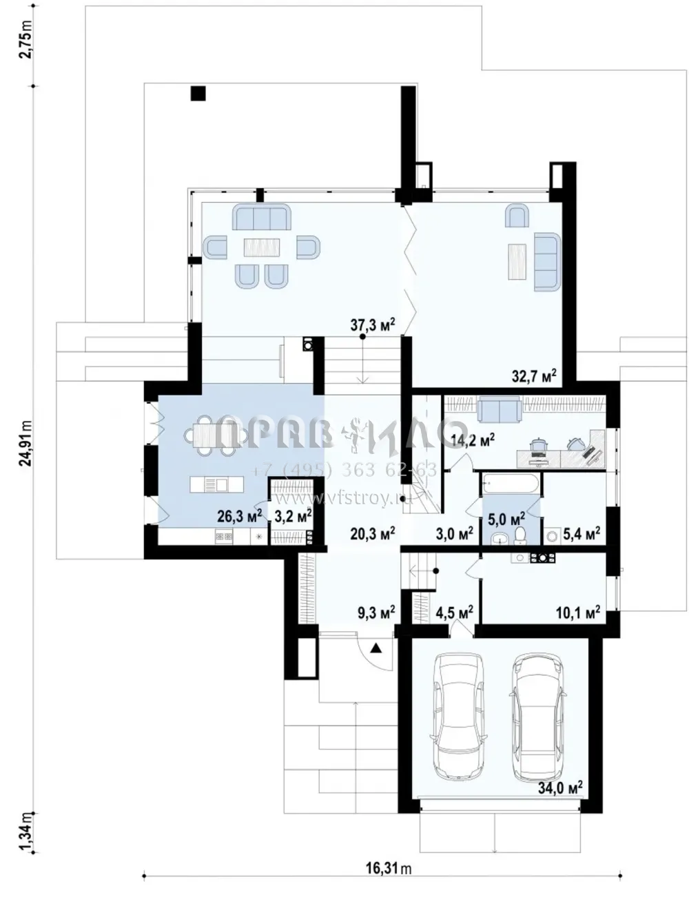
Но начать стоит все же с гостиной. В доме целых два помещения для приема гостей. Они могут быть разделены перегородкой или раздвижными ширмами. Все длинные стены сделаны стеклянными и имеют выходы на прилегающую веранду. 

Кухня со столовой находятся в другой комнате. Поэтому процессы приготовления еды, а также званые ужины и обеды не будут мешать времяпрепровождению в гостиной. Дополнительно на первом этаже есть кабинет и ванная с прачечной, гараж на две машины. 

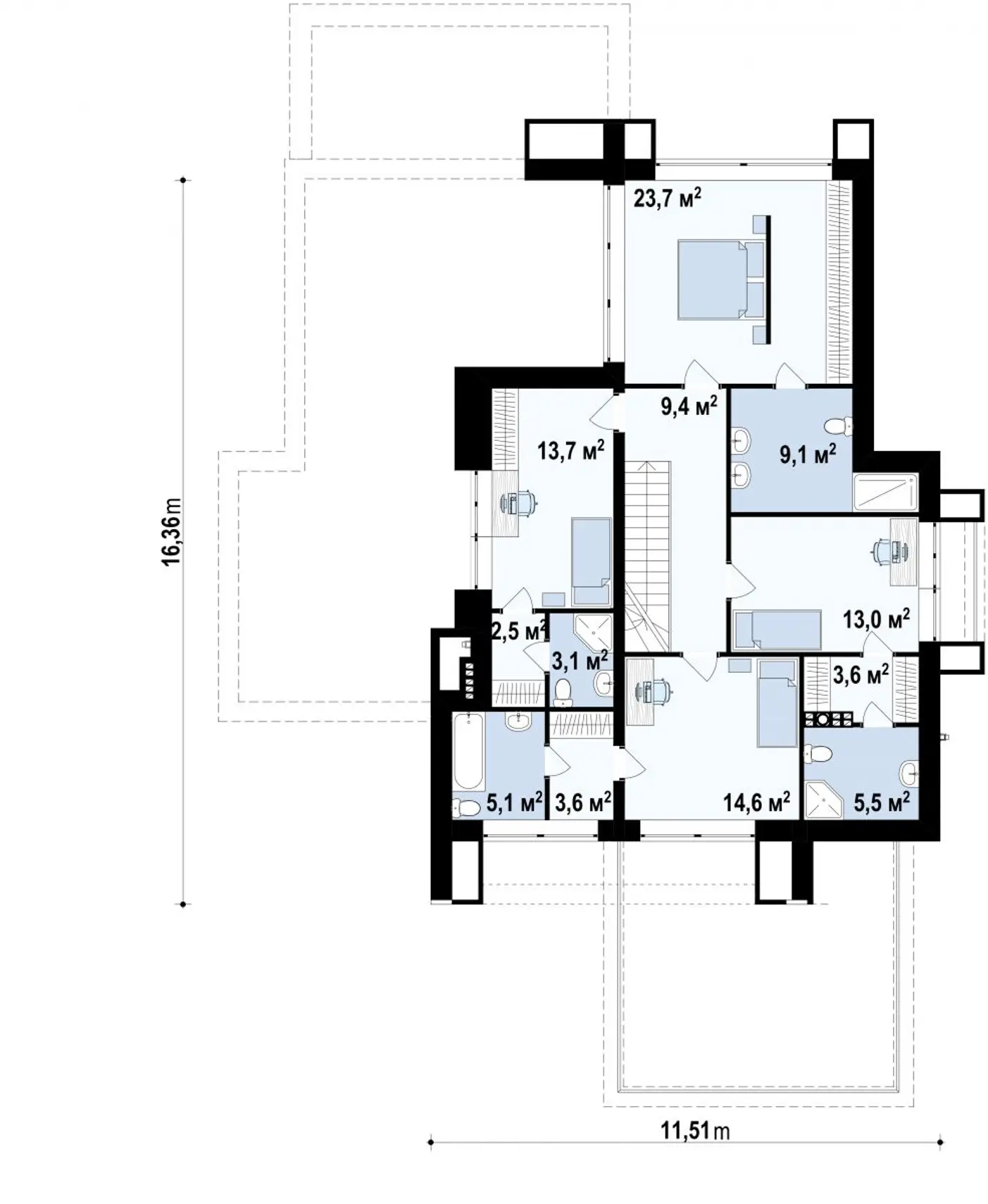
Сверху находятся четыре большие спальни, для каждой предусмотрены собственные полноценные ванные комнаты. А в трех их них нашлось место и для гардеробных. 

3D Модель

Аккредитованы в ведущих банках

Корзина
Ваша корзина пуста
Выберите в каталоге интересующий товар и нажмите кнопку "В корзину"
Отложенные товары
Отложенных товаров нет
Выберите в каталоге интересующий товар и нажмите кнопку "В избранное"
Заказать звонок