Проекты домов Оформить
ипотеку
Стройматериалы Участки Строительство
Выберите свой регион строительства
Крымский федеральный округ
Крым
Close mobile menu

Характеристики дома:

Площадь дома

340 m2

Кол-во жилых комнат

6+
Стоимость проекта АР+КР
104,100 ₽

Хотите изменить планировку?

Отправьте запрос архитектору и обсудите с ним ваши идеи по перепланировке.

О проекте

S3-340 (z556) Коттедж в футуристичном стиле с большим количеством террас и скатной крышей. Внутри предусмотрено много пространства для отдыха большой компании. Но при этом архитекторы не забыли и о спальнях, где можно хорошо отдохнуть после трудовой недели или шумного праздника.
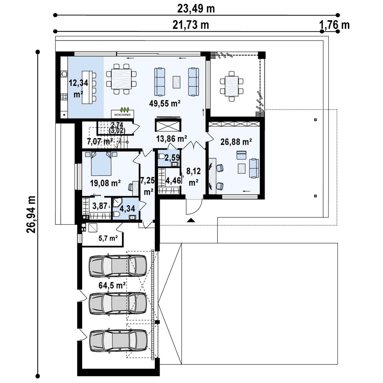
Общая зона представлена гостиной в 50 кв. метров. Она совмещена с кухней. Между ними дизайнеры предлагают разместить большой обеденный стол. В качестве дополнительного пространства можно использовать крытую террасу с безрамным остеклением. А для решения деловых вопросов подойдет кабинет.
Обратите внимание, что на первом уровне есть также гараж на две машины, котельная, спальня с собственным санузлом и гардеробом, гостевой туалет.
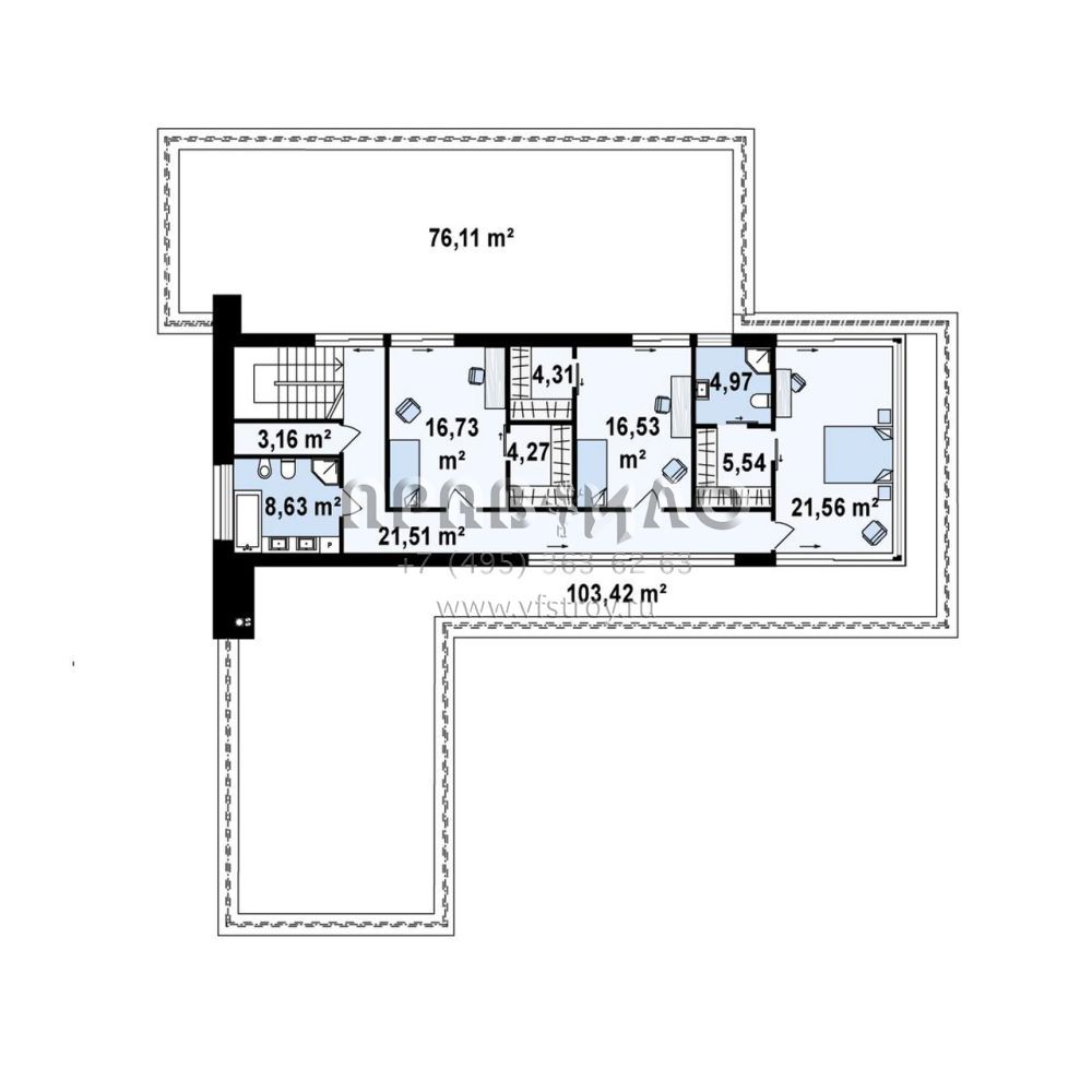
Второй уровень дома разделен на три спальни. В каждой из них есть место для хранения вещей, а в одной — свой туалет с душевой кабинкой. Особенностью проекта являются гигантские террасы и большая площадь остекления.

Аккредитованы в ведущих банках

Корзина
Ваша корзина пуста
Выберите в каталоге интересующий товар и нажмите кнопку "В корзину"
Отложенные товары
Отложенных товаров нет
Выберите в каталоге интересующий товар и нажмите кнопку "В избранное"
Заказать звонок