Проекты домов Оформить
ипотеку
Стройматериалы Участки Строительство
Выберите свой регион строительства
Крымский федеральный округ
Крым
Close mobile menu

Характеристики дома:

Площадь дома

219 m2

Кол-во жилых комнат

5
Стоимость проекта АР+КР
77,400 ₽

Хотите изменить планировку?

Отправьте запрос архитектору и обсудите с ним ваши идеи по перепланировке.

О проекте

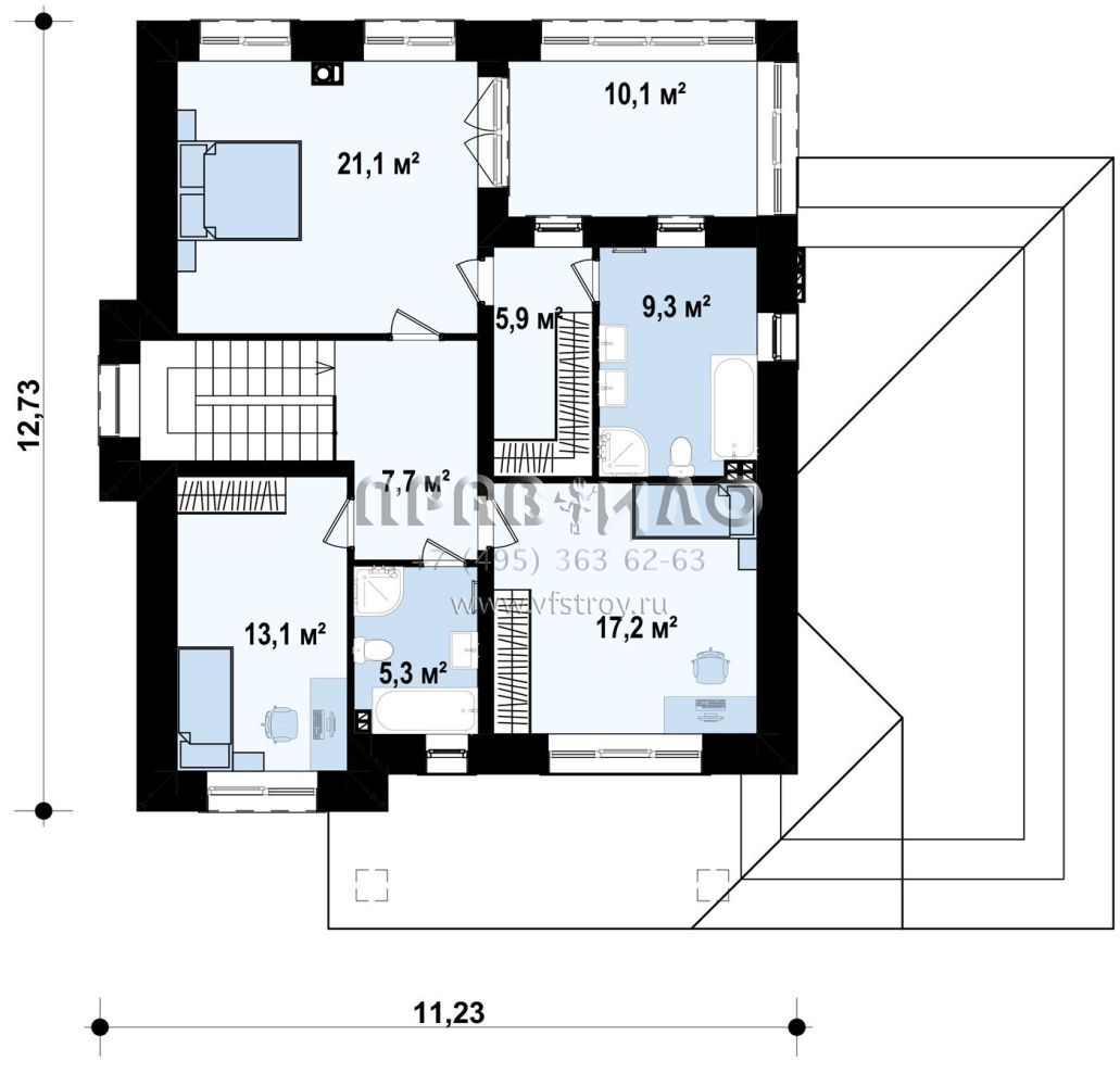
S3-219-5 (Zz2 k) Большой двухэтажный дом в традиционном стиле. Идеальный вариант для постоянного проживания в коттеджном поселке вдали от суеты мегаполиса. Проектировщики позаботились о том, чтобы у владельцев было достаточно комнат для приема гостей, работы и отдыха.
Гостиная в доме представляет собой самостоятельное помещение. Кухня со столовой находятся в другой комнате, но не отделены перегородкой. Это позволяет изолировать процессы приготовления еды, но оставить больше площади для проведения шумных вечеринок.
Рядом с гостевой зоной расположен рабочий кабинет и санузел для дневного использования. В кухне предусмотрена кладовая для хранения припасов. Котельная имеет вход с заднего двора для удобного обслуживания.
Все спальни вынесены на второй этаж. Главная комната удивляет своим комфортом. В ней есть свой гардероб, санузел и застекленный балкон. Для двух других помещений есть еще одна ванная.

Модификации проекта

Аккредитованы в ведущих банках

Корзина
Ваша корзина пуста
Выберите в каталоге интересующий товар и нажмите кнопку "В корзину"
Отложенные товары
Отложенных товаров нет
Выберите в каталоге интересующий товар и нажмите кнопку "В избранное"
Заказать звонок