Проекты домов Оформить
ипотеку
Стройматериалы Участки Строительство
Выберите свой регион строительства
Крымский федеральный округ
Крым
Close mobile menu

Характеристики дома:

Площадь дома

214 m2

Кол-во жилых комнат

5
Стоимость проекта АР+КР
68,770 ₽

Хотите изменить планировку?

Отправьте запрос архитектору и обсудите с ним ваши идеи по перепланировке.

О проекте

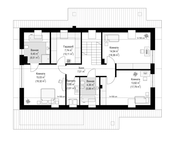
S8-214-1 (Биба). Одноэтажный дом с мансардным этажом и уютной террасой у входа идеально подходит для комфортного проживания семьи из трех-четырех человек. Внутреннее пространство этого дома разделено на два уровня. В качестве второго уровня используется мансарда, расположенная под крышей, где обустроены дополнительные жилые помещения.

На первом этаже находится просторная и светлая гостиная с камином, которая имеет выход на террасу и соединена с кухней. Здесь же расположены кабинет или гостевая спальня, ванная комната, небольшая прихожая и холл с лестницей.

На мансардном этаже располагается спальная зона. Окна на мансарде обеспечивают дополнительное освещение, что делает помещение более светлым и просторным. Здесь находятся три спальни и общая ванная комната, что позволяет каждому члену семьи отдыхать в комфортных условиях. Родительская спальня включает в себя собственную ванную комнату и гардеробную. Также на этом уровне есть прачечная.

Проект также предусматривает наличие двухместного гаража и технического помещения для котельной.

Аккредитованы в ведущих банках

Корзина
Ваша корзина пуста
Выберите в каталоге интересующий товар и нажмите кнопку "В корзину"
Отложенные товары
Отложенных товаров нет
Выберите в каталоге интересующий товар и нажмите кнопку "В избранное"
Заказать звонок