Проекты домов Оформить
ипотеку
Стройматериалы Участки Строительство
Выберите свой регион строительства
Крымский федеральный округ
Крым
Close mobile menu

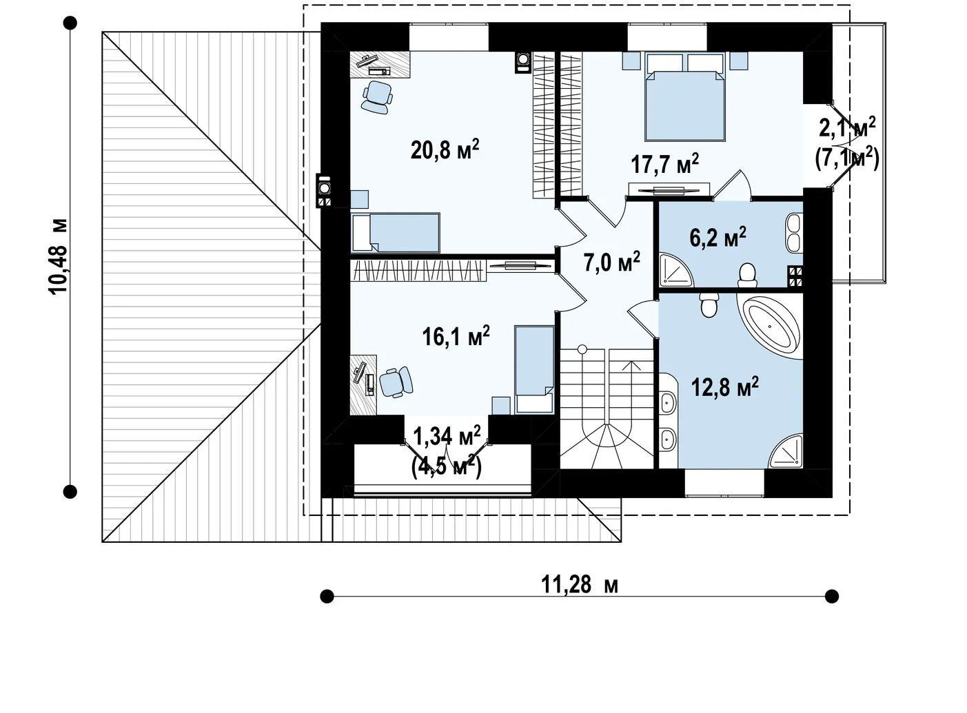
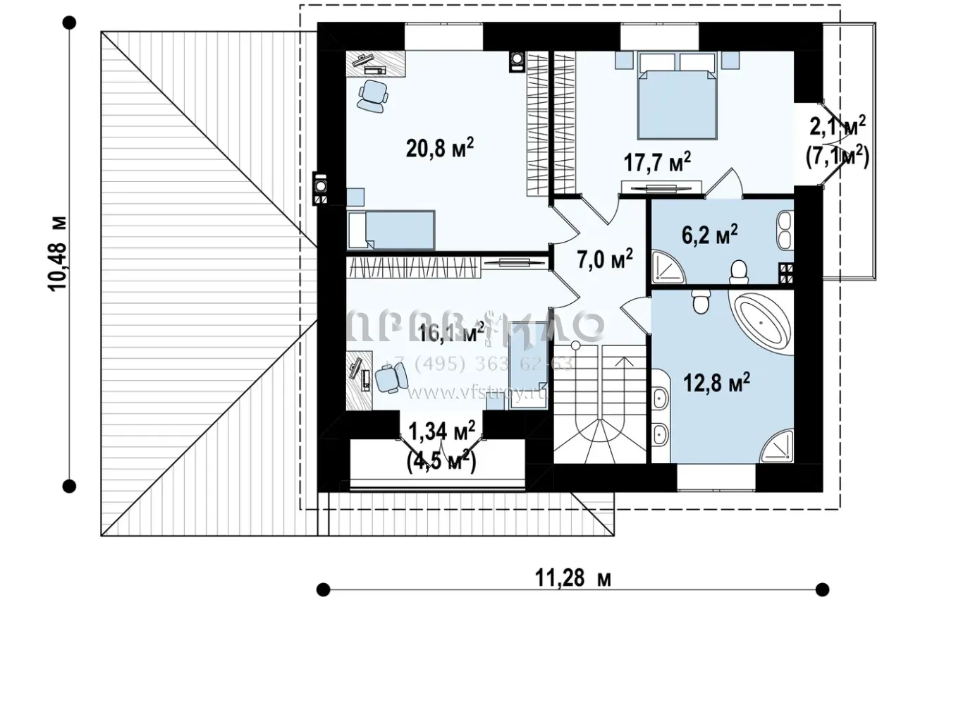
Характеристики дома:

Площадь дома

206 m2

Кол-во жилых комнат

5
Стоимость проекта АР+КР
69,000 ₽

Хотите изменить планировку?

Отправьте запрос архитектору и обсудите с ним ваши идеи по перепланировке.

О проекте

S3-206-5(Zx12 K)- архитекторы разрабатывали этот проект, думая о комфортном проживании семьи с большим количеством детей. В классическом двухэтажном особняке есть 4 жилые комнаты, несколько ванных, гараж и вспомогательные помещения. Внутренние перегородки установлены так, чтобы жители дома не мешали друг другу независимо от их занятий в течение дня.
Особое внимание проектировщики уделили дневной зоне. Гостиная имеет неправильную форму, что позволило установить обеденный стол дальше от диванов. Рядом находится частично изолированная кухня с двумя входами. В ней есть кладовая, где можно хранить припасы и инвентарь.
Владельцу дома понравится гараж. В нем есть мастерская-склад с выходом на улицу. Если придется разгружать машину во время дождя, можно пользоваться боковой дверью, которая ведет внутрь коттеджа.
Одна из трех спален на втором этаже имеет собственную ванную.

Дизайн интерьера

Понравился этот дом?

Отправьте нам сообщение, и мы ответим на все интересующие вас вопросы.

Аккредитованы в ведущих банках

Корзина
Ваша корзина пуста
Выберите в каталоге интересующий товар и нажмите кнопку "В корзину"
Отложенные товары
Отложенных товаров нет
Выберите в каталоге интересующий товар и нажмите кнопку "В избранное"
Заказать звонок