Проекты домов Оформить
ипотеку
Стройматериалы Участки Строительство
Выберите свой регион строительства
Крымский федеральный округ
Крым
Close mobile menu

Характеристики дома:

Площадь дома

186.1 m2

Кол-во жилых комнат

5
Проект с подрядом

Хотите изменить планировку?

Отправьте запрос архитектору и обсудите с ним ваши идеи по перепланировке.

О проекте

S-199. Этот проект представляет из себя двухэтажный загородный дом в классическом стиле. Его комбинированная отделка фасадов выглядит статусно и стильно, а внутренние планировки рассчитаны на комфортное проживание семьи c 2-3 детьми.
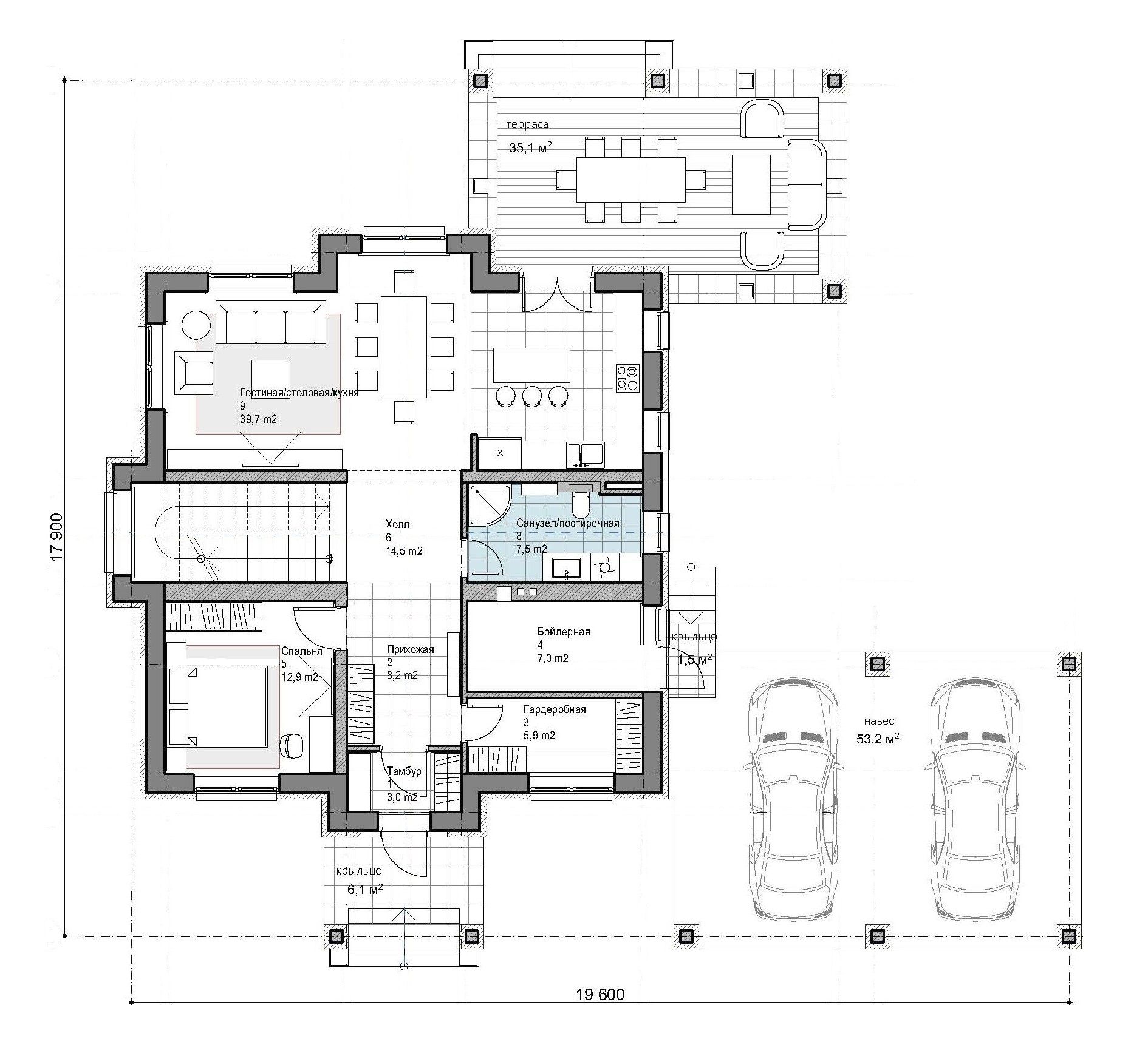
Сразу хочется остановиться на большом навесе для двух автомобилей. Помимо того, что он красиво вписан в общую архитектуру дома, такой навес защитит вас и ваш автомобиль от осадков – будь то дождь или снег. После того, как мы попадаем в дом, нас встречает просторная гардеробная для всей верхней одежды. Далее по коридору видим просторный санузел, который можно в большей степени отвести под задачи постирочной. На этаже есть полноценная спальня – она может служить гостевой комнатой, детской или вообще кабинетом для удаленной работы.
Центральная зона первого этажа – большое помещение кухни-гостиной-столовой, где вся семья может собираться на приём пищи и просмотр сериалов. Приятный бонус – это организованный прямо с кухни выход на крытую террасу. Сложно представить что-то лучше, чем чашка чая тёплым летним вечером на своей веранде.
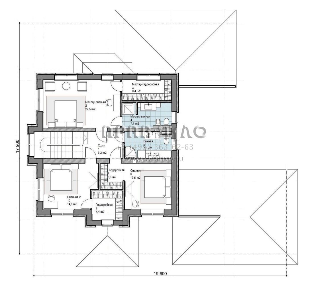
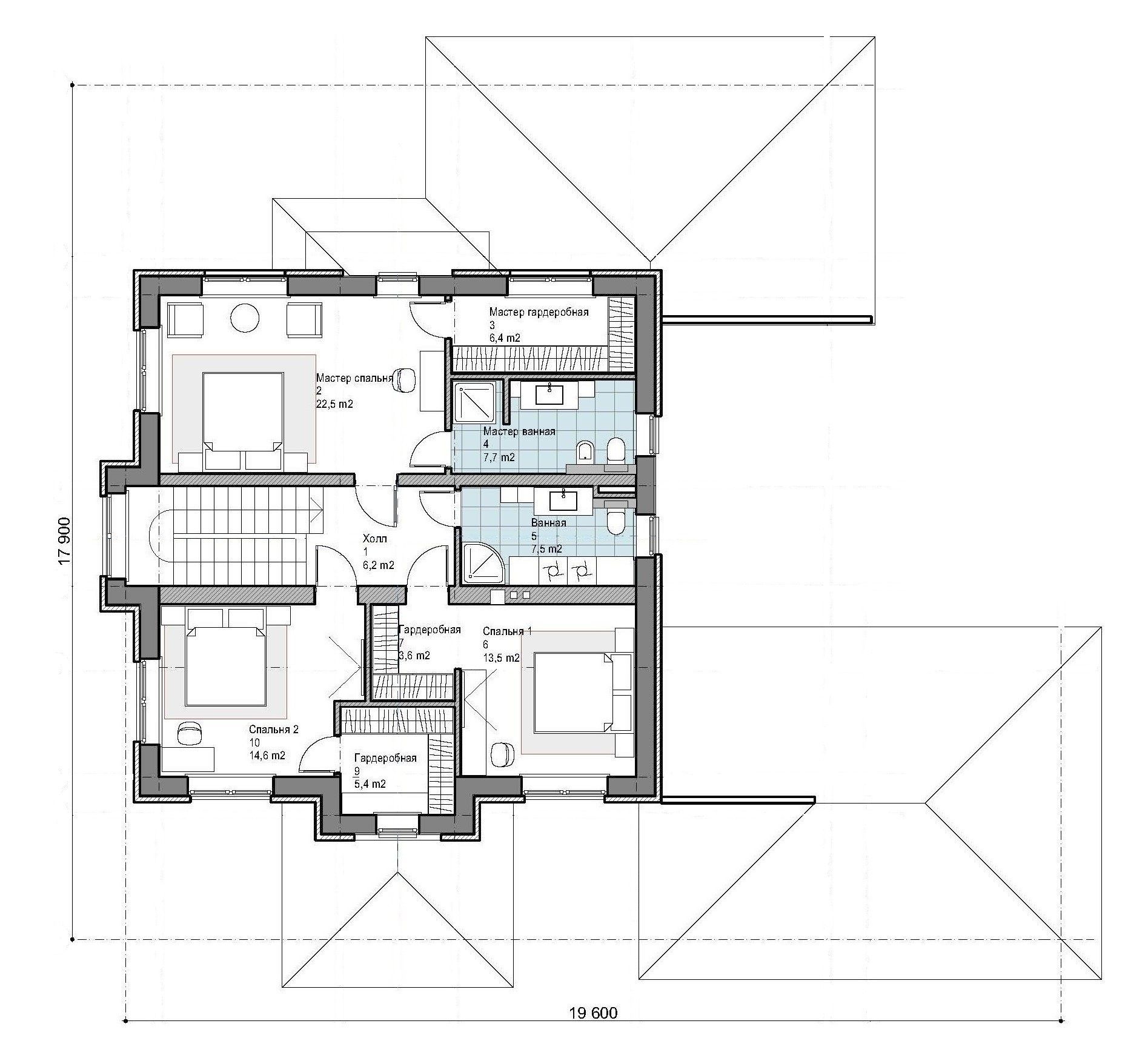
На втором этаже мы находим три просторные спальни. Родительская комната выполнена в формате мастер-спальни и включает в себя отдельную ванную и гардеробную. А в каждой из двух детских спален спроектированы достаточно большие гардеробные. На этаже есть и еще одна ванная комната – всё сделано для максимального комфорта всех членов семьи.

Аккредитованы в ведущих банках

Корзина
Ваша корзина пуста
Выберите в каталоге интересующий товар и нажмите кнопку "В корзину"
Отложенные товары
Отложенных товаров нет
Выберите в каталоге интересующий товар и нажмите кнопку "В избранное"
Заказать звонок