Проекты домов Оформить
ипотеку
Стройматериалы Участки Строительство
Выберите свой регион строительства
Крымский федеральный округ
Крым
Close mobile menu

Характеристики дома:

Площадь дома

181 m2

Кол-во жилых комнат

5
Стоимость проекта АР+КР
77,400 ₽

Хотите изменить планировку?

Отправьте запрос архитектору и обсудите с ним ваши идеи по перепланировке.

О проекте

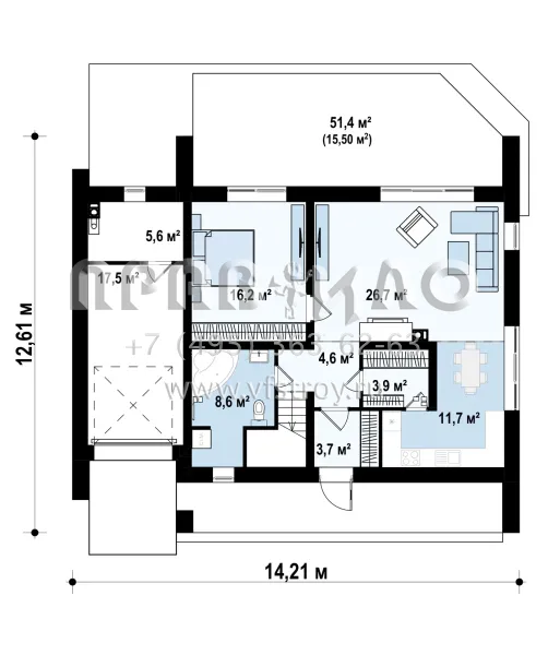
S3-181-3(ZX55) - проект каменного дома с мансардой и просторной террасой идеально подойдет для семьи, которая ценит не только комфорт внутри, но и красоту снаружи.
Простое архитектурное решение компенсируется элегантной внешней отделкой фасада. Этот дом точно будет привлекать взгляды!
На первом этаже удобно располагается общая зона гостиной, кухни и столовой. Там же просторная комната для кабинета или гостевой. Все это дополняется большим санузлом и прачечной.
Мансарда — спальная зона, где в главной комнате есть собственная ванная и гардеробная. Ещё две комнаты делят общий санузел. И этого вполне достаточно для семьи, которая любит принимать гостей.
Чудесный отдых на свежем воздухе подарит красивая терраса, опоясывающая дом с трех сторон.  Интересное решение, которое изюминкой этого дома!
Большая площадь остекления дает много дневного света.
Простая конструкция коробки, крепкий фундамент, гараж, удобная кладовая — несомненные плюсы этого проекта!

3D Модель

Аккредитованы в ведущих банках

Корзина
Ваша корзина пуста
Выберите в каталоге интересующий товар и нажмите кнопку "В корзину"
Отложенные товары
Отложенных товаров нет
Выберите в каталоге интересующий товар и нажмите кнопку "В избранное"
Заказать звонок