Проекты домов Оформить
ипотеку
Стройматериалы Участки Строительство
Выберите свой регион строительства
Крымский федеральный округ
Крым
Close mobile menu

Характеристики дома:

Площадь дома

177 m2

Кол-во жилых комнат

4
Стоимость проекта АР+КР
58,100 ₽

Хотите изменить планировку?

Отправьте запрос архитектору и обсудите с ним ваши идеи по перепланировке.

О проекте

S3-177-4(Z371) - Далеко не всем нравятся вычурные фасады, комнаты сложной конфигурации и обилие архитектурных элементов. Ценителям традиционных форм стоит обратить внимание на этот проект. В нем реализованы несколько интересных решений.
Первое — раздельные гостиная и кухня со столовой. Члены семьи и близкие не будут наблюдать за приготовлением пищи и испытывать неудобства из-за неприятного запаха. Вместо этого они смогут наслаждаться видами из больших окон или отдыхать на открытой террасе.
Второе — рабочий кабинет у входа. В него можно войти, не попадая в жилые помещения дома и гостиную. Такой вариант можно использовать предпринимателям для приема посетителей на дому.
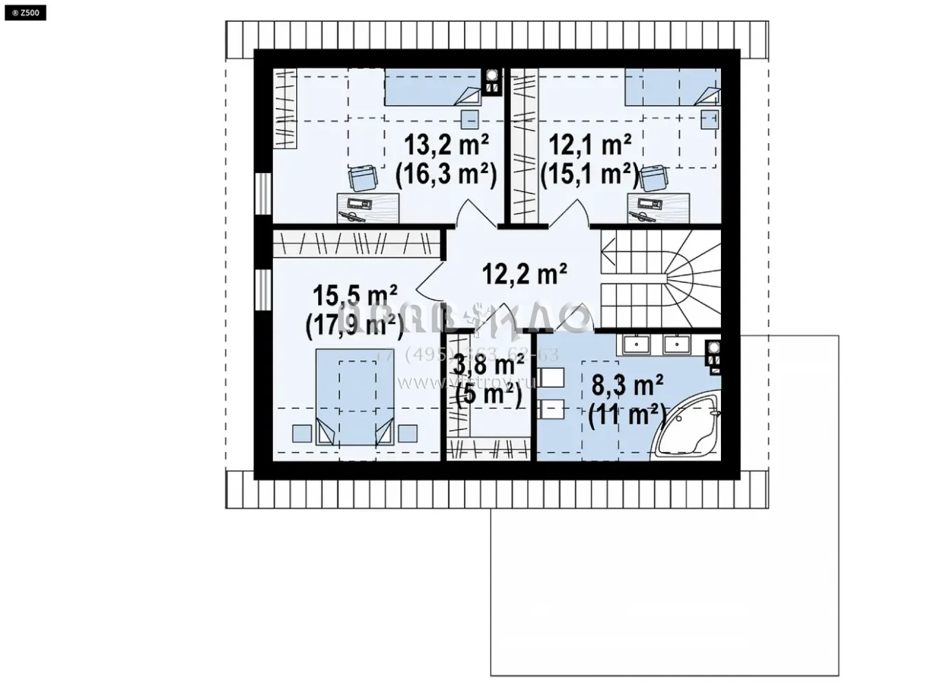
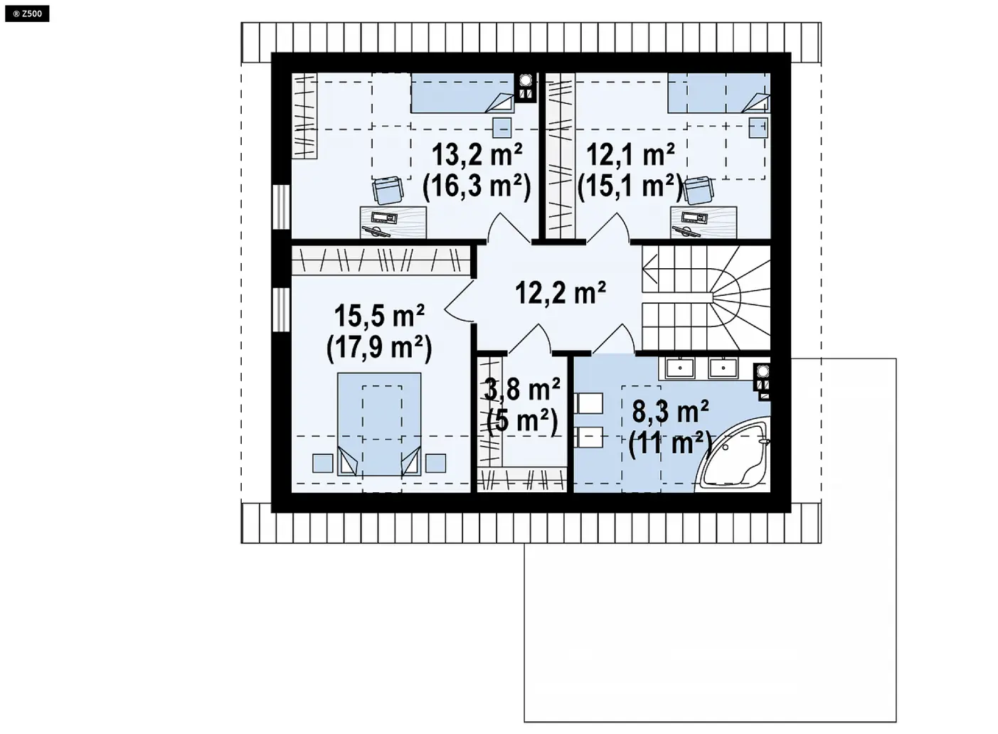
Третье — изолированная ночная зона на втором этаже с тремя спальнями, общей ванной и гардеробной.
Четвертое — вход в коттедж из гаража и котельная с отдельным выходом. Такое решение облегчает разгрузку машины.

3D Модель

Аккредитованы в ведущих банках

Корзина
Ваша корзина пуста
Выберите в каталоге интересующий товар и нажмите кнопку "В корзину"
Отложенные товары
Отложенных товаров нет
Выберите в каталоге интересующий товар и нажмите кнопку "В избранное"
Заказать звонок