Проекты домов Оформить
ипотеку
Стройматериалы Участки Строительство
Выберите свой регион строительства
Крымский федеральный округ
Крым
Close mobile menu

Характеристики дома:

Площадь дома

170 m2

Кол-во жилых комнат

4
Стоимость проекта АР+КР
77,400 ₽

Хотите изменить планировку?

Отправьте запрос архитектору и обсудите с ним ваши идеи по перепланировке.

О проекте

S3-170-6 (Zx97) - Если вам надоели коттеджи в классическом стиле, обратите внимание на этот проект. Дизайнеры отошли от традиционных прямоугольных форм и скатных крыш. Дом в современном дизайне имеет сложную конфигурацию и обязательно привлечет внимание ценителей необычной архитектуры. 

Проектировщики поработали не только над внешним видом, но и над планировкой внутреннего пространства. В этом проекте гостиная полностью изолирована от кухни со столовой. Главная комната застеклена с двух сторон и имеет выход на огромную веранду. Место для приготовления и приема пищи зонировано с помощью барной стойки посередине. 

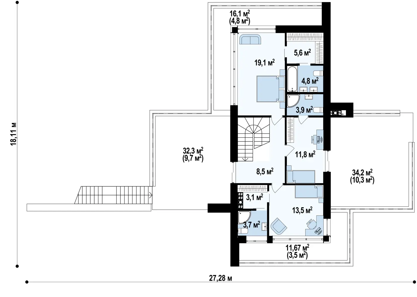
Верхний уровень занимают три спальни и терраса. Каждая комната имеет собственную ванную и гардероб. 

Этот дом идеально вписывается в ландшафт участка со сложным рельефом, так как проектом предусмотрена дополнительная лестница и вход на втором этаже. 

3D Модель

Аккредитованы в ведущих банках

Корзина
Ваша корзина пуста
Выберите в каталоге интересующий товар и нажмите кнопку "В корзину"
Отложенные товары
Отложенных товаров нет
Выберите в каталоге интересующий товар и нажмите кнопку "В избранное"
Заказать звонок