Проекты домов Оформить
ипотеку
Стройматериалы Участки Строительство
Выберите свой регион строительства
Крымский федеральный округ
Крым
Close mobile menu

Характеристики дома:

Площадь дома

163 m2

Кол-во жилых комнат

6+
Стоимость проекта АР+КР
67,800 ₽

Хотите изменить планировку?

Отправьте запрос архитектору и обсудите с ним ваши идеи по перепланировке.

О проекте

S3-163-10 (Zx24 v2) Большой дом и двумя полноценными этажами прекрасно подойдет для круглогодичного проживания. В нем есть все необходимое для создания семейного уюта. Хранить автомобиль можно в гараже с кладовой и выходом в дом, работать удобно в кабинете на первом этаже, а принимать гостей — в большой гостиной площадью в 25 кв. метров с выходом на крытую террасу.
Планировка общих помещений частично открытая. Кухня занимает отдельную комнату, но между нею и гостевой зоной есть большой проем. Таким образом легче организовать прием гостей. Дополнительный выход на веранду позволяет сервировать обеды на свежем воздухе.
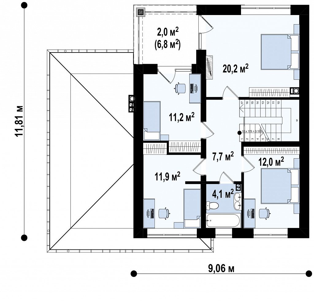
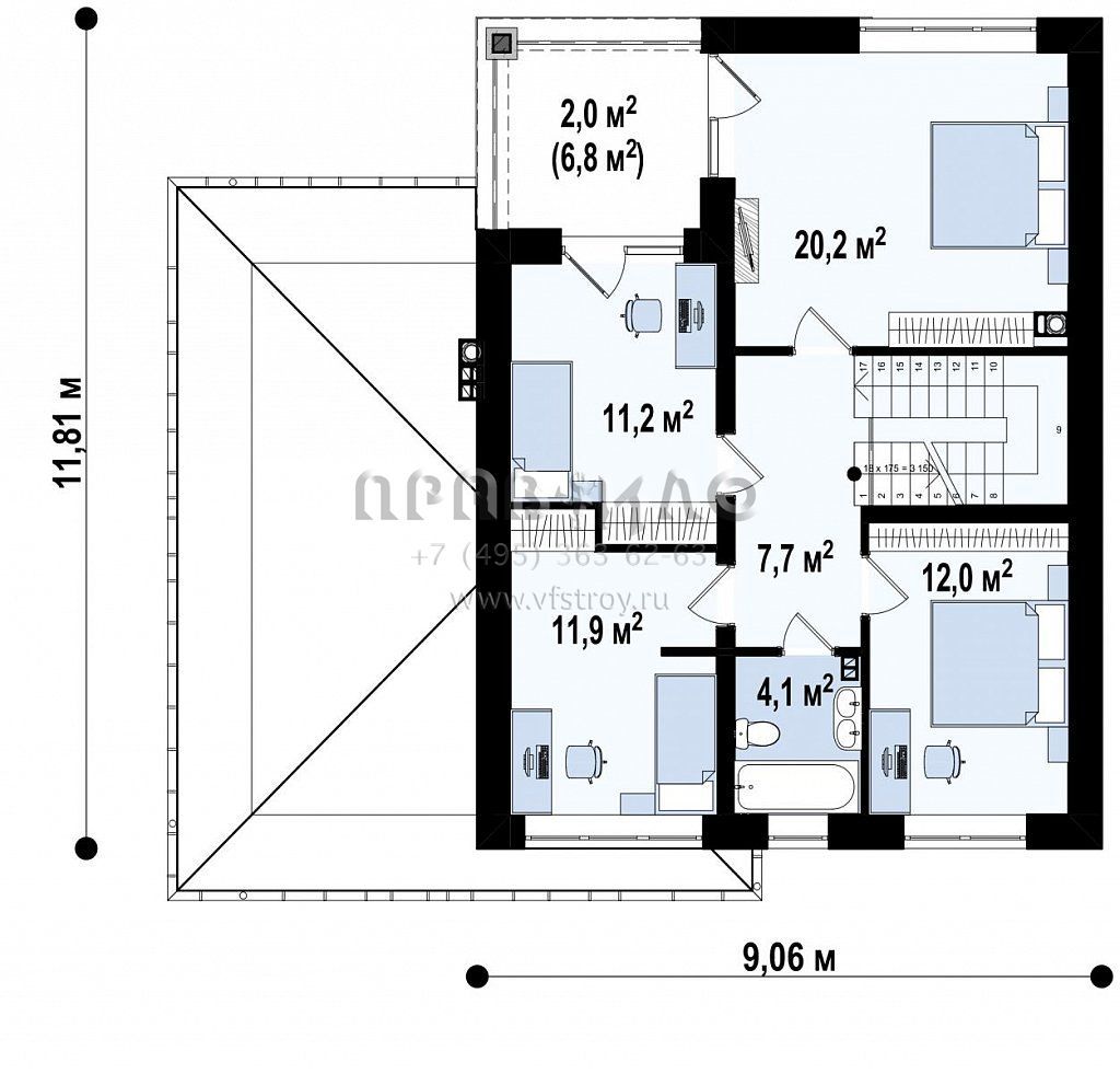
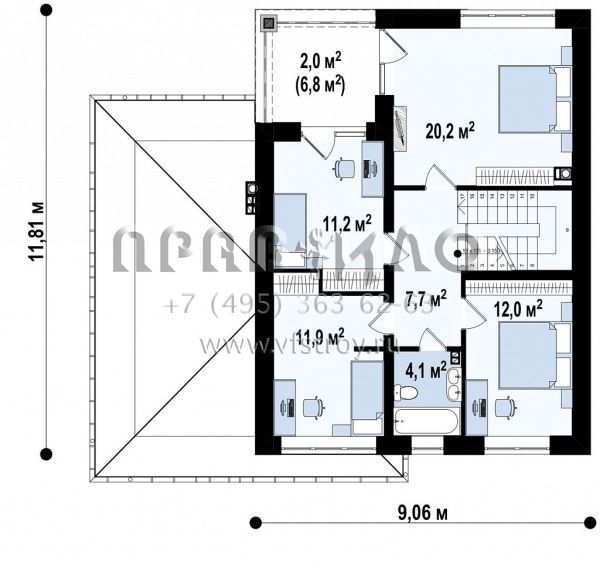
Жилище настолько просторное, что в нем легко поместится семья из двух взрослых и как минимум трех детей. На втором уровне расположились четыре спальни с общей ванной на всех. Есть небольшой балкон, куда можно попасть из двух разных комнат.

Модификации проекта

Дизайн интерьера

Понравился этот дом?

Отправьте нам сообщение, и мы ответим на все интересующие вас вопросы.

Аккредитованы в ведущих банках

Корзина
Ваша корзина пуста
Выберите в каталоге интересующий товар и нажмите кнопку "В корзину"
Отложенные товары
Отложенных товаров нет
Выберите в каталоге интересующий товар и нажмите кнопку "В избранное"
Заказать звонок