Проекты домов Оформить
ипотеку
Стройматериалы Участки Строительство
Выберите свой регион строительства
Крымский федеральный округ
Крым
Close mobile menu

Характеристики дома:

Площадь дома

139 m2

Кол-во жилых комнат

4
Стоимость проекта АР+КР
52,000 ₽

Хотите изменить планировку?

Отправьте запрос архитектору и обсудите с ним ваши идеи по перепланировке.

О проекте

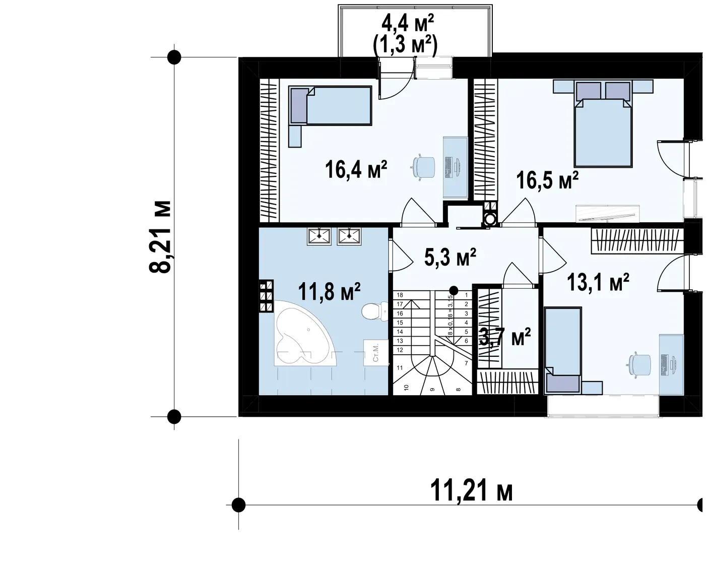
S3-139-4 (Z89) - Этому дому отдадут предпочтение люди, которые хотят иметь изолированную гостиную. Кухня и столовая в этом проекте полностью отделены от места для отдыха. Все эти помещения занимают первый этаж постройки, оставляя второй уровень для размещения спален. 
Площадь гостиной составляет более 32 кв. метров. Большая двустворчатая дверь ведет на открытую веранду, куда можно попасть и из столовой. Для удобства гостей внизу предусмотрен дополнительный санузел. А помещение котельной можно использовать как кладовую.
Чтобы хранить кухонный инвентарь, припасы и домашние заготовки, проектировщики обустроили небольшую кладовую рядом с кухней. 
В доме есть три спальни, причем в одной из них есть балкон. Ванная комната одна на всех членов семьи. Но в общий коридор мансарды выходят также двери из гардеробной, где можно хранить вещи и гладильные принадлежности. 
Несмотря на компактные внешние габариты дома, внутри от спланирован очень грамотно. Поэтому никто из членов семьи не будет чувствовать себя стесненным. 

Дизайн интерьера

Понравился этот дом?

Отправьте нам сообщение, и мы ответим на все интересующие вас вопросы.

Аккредитованы в ведущих банках

Корзина
Ваша корзина пуста
Выберите в каталоге интересующий товар и нажмите кнопку "В корзину"
Отложенные товары
Отложенных товаров нет
Выберите в каталоге интересующий товар и нажмите кнопку "В избранное"
Заказать звонок