Проекты домов Оформить
ипотеку
Стройматериалы Участки Строительство
Выберите свой регион строительства
Крымский федеральный округ
Крым
Close mobile menu

Характеристики дома:

Площадь дома

122 m2

Кол-во жилых комнат

5
Стоимость проекта АР+КР
52,000 ₽

Хотите изменить планировку?

Отправьте запрос архитектору и обсудите с ним ваши идеи по перепланировке.

О проекте

S3-122-5(Z468) - Во время работы над этим проектом архитекторы думали о компактности постройки и доступной цене строительства. Но при этом они не стали жертвовать комфортом жителей и их гостей. Внутри нашлось место для открытой гостиной, трех спален и кабинета.
Дом с мансардой занимает очень мало места на участке. Его можно порекомендовать тем, кто ищет максимально экономный вариант или хочет построить себе летнюю дачу.
Общая зона располагается в задней части дома. Гостиная и кухня представляют собой одно целое и зонированы с помощью острова. Место для обеденного стола выделено рядом с выходом на веранду. Здесь же располагается камин, в котором можно разжигать живой огонь.
Прямо у входа в дом находится котельная, которую можно использовать для хранения вещей. Чуть дальше по коридору — вход в санузел и гостевую спальню.
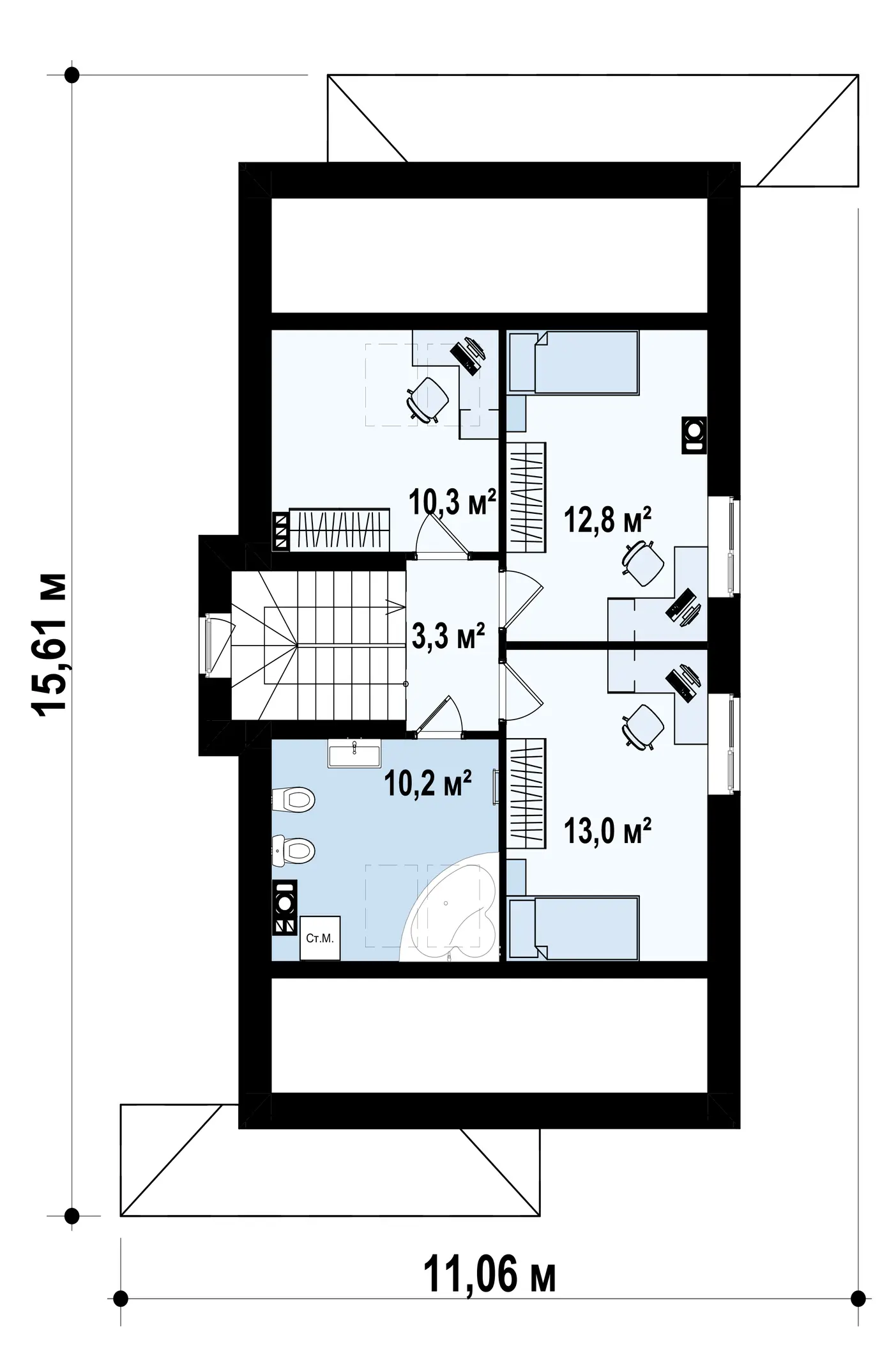
Еще три жилые комнаты и большая ванная находятся в мансарде.

3D Модель

Аккредитованы в ведущих банках

Корзина
Ваша корзина пуста
Выберите в каталоге интересующий товар и нажмите кнопку "В корзину"
Отложенные товары
Отложенных товаров нет
Выберите в каталоге интересующий товар и нажмите кнопку "В избранное"
Заказать звонок