Проекты домов Оформить
ипотеку
Стройматериалы Участки Строительство
Выберите свой регион строительства
Крымский федеральный округ
Крым
Close mobile menu

Характеристики дома:

Площадь дома

119 m2

Кол-во жилых комнат

4
Стоимость проекта АР+КР
58,100 ₽

Хотите изменить планировку?

Отправьте запрос архитектору и обсудите с ним ваши идеи по перепланировке.

О проекте

S3-119-5 (Z374) - этот современный дом с двумя балконами второго этажа придётся по вкусу как любителям современной архитектуры, так и ценителям классики. Такой двухэтажный дом идеально подойдет для проживания семьи из 4 человек.

На первом этаже расположилась дневная зона дома с просторной гостиной, совмещенной с кухней и столовой. Здесь же есть и камин – бессменный символ уюта и тепла Вашего дома. В летний сезон Вы можете воспользоваться верандой, чтобы провести время с семьей и друзьями на свежем воздухе. Также на этаже есть гардеробная и санузел с душевой кабиной. И конечно гараж на один автомобиль, вход в который организован прямо из прихожей.

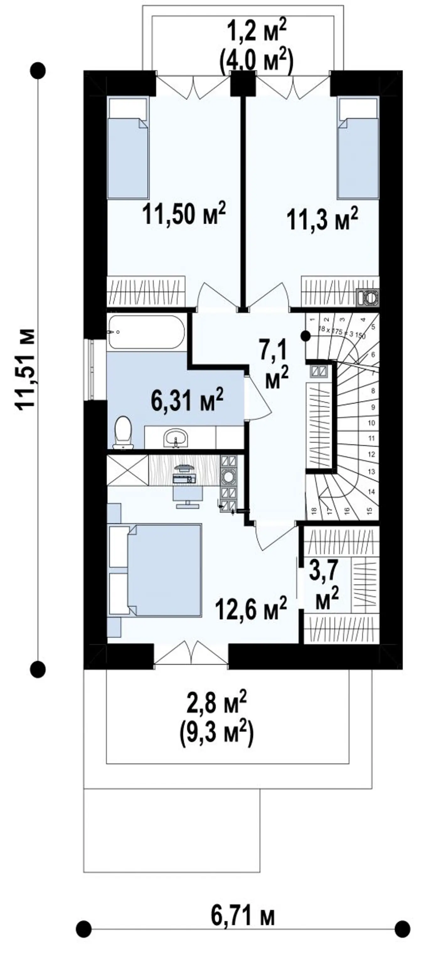
Поднимаемся на второй этаж и попадаем в ночную зону коттеджа. Здесь мы видим три спальни (у родительской есть свой гардероб) и общую ванную комнату. Из каждой спальни есть выход на один из двух балконов: в летний сезон это станет большим преимуществом.

3D Модель

Аккредитованы в ведущих банках

Корзина
Ваша корзина пуста
Выберите в каталоге интересующий товар и нажмите кнопку "В корзину"
Отложенные товары
Отложенных товаров нет
Выберите в каталоге интересующий товар и нажмите кнопку "В избранное"
Заказать звонок