Проекты домов Оформить
ипотеку
Стройматериалы Участки Строительство
Выберите свой регион строительства
Крымский федеральный округ
Крым
Close mobile menu

Характеристики дома:

Площадь дома

116 m2

Кол-во жилых комнат

4
Стоимость проекта АР+КР
52,000 ₽

Хотите изменить планировку?

Отправьте запрос архитектору и обсудите с ним ваши идеи по перепланировке.

О проекте

S3-116-3(Z227) - этим проектом представлен двухэтажный компактный дом с мансардой 一 классический вариант выгодного строительства. Подойдет для молодой семьи с двумя детьми, или для тех, кто планирует их завести.
Экономичное оформление фасада компенсируется компактной функциональной обстановкой.
Красивая терраса с возможностью устроить пруд или сад — изюминка этого экстерьера.
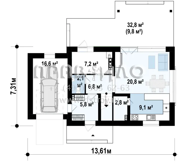
Первый этаж состоит из всех необходимых хозяйственных помещений: санузла, кладовой, котельной и хорошего гаража.
Красивая гостиная плавно переходит в столовую и П-образную кухню. Выход на веранду позволяет устраивать уютные чаепития на свежем воздухе.
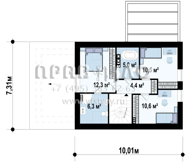
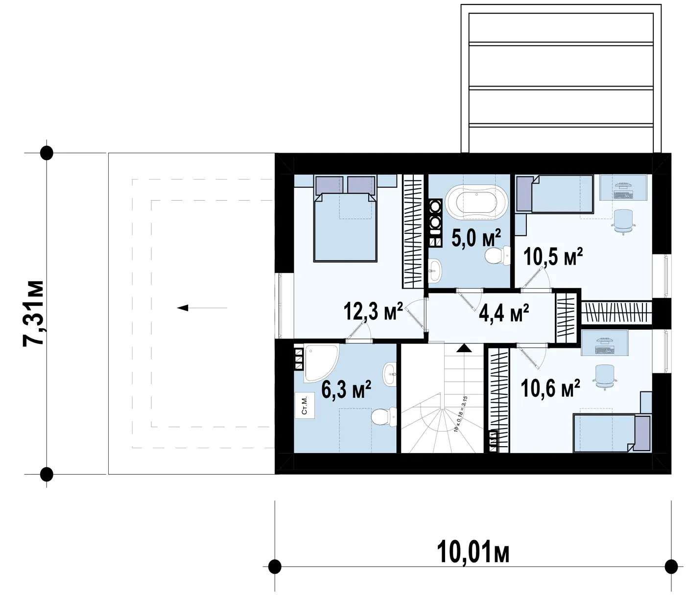
На верхнем этаже три спальни, где в каждой продумано место для гардеробных шкафов.
Также тут есть большой санузел с душевой кабиной и отдельная ванная комната.
Это прекрасный вариант для постройки на небольшом участке с красивым оформлением ландшафта и зоной отдыха на улице.

3D Модель

Аккредитованы в ведущих банках

Корзина
Ваша корзина пуста
Выберите в каталоге интересующий товар и нажмите кнопку "В корзину"
Отложенные товары
Отложенных товаров нет
Выберите в каталоге интересующий товар и нажмите кнопку "В избранное"
Заказать звонок