Проекты домов Оформить
ипотеку
Стройматериалы Участки Строительство
Выберите свой регион строительства
Крымский федеральный округ
Крым
Close mobile menu

Характеристики дома:

Площадь дома

155 m2

Кол-во жилых комнат

6+
Стоимость проекта АР+КР
52,000 ₽

Хотите изменить планировку?

Отправьте запрос архитектору и обсудите с ним ваши идеи по перепланировке.

О проекте

S3-155 (Z269) - Коттедж можно посоветовать тем, кто ищет аккуратное, экономичное и комфортное жилье для себя и своей семьи. Одна из особенностей этого мансардного дома — большое количество жилых помещений. Четыре спальни на мансарде дополнены еще одной комнатой снизу. Ее можно сделать кабинетом или использовать в качестве спальни. 
Гостиная в этом доме имеет прямоугольную форму и совмещена с открытой кухней. За счет этого комнату небольшой площади удалось сделать удобной и функциональной. К ее плюсам можно отнести большое окно с дверью на веранду, а также два дополнительных выхода в торце постройки. 
Во встроенном гараже поместиться одна машина. Из него можно попасть прямо в дом, минуя улицу. Есть еще одна дверь, которая ведет в котельную-склад.
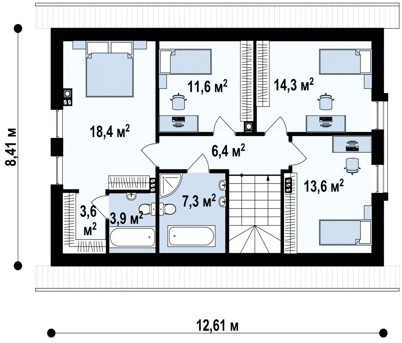
Выходы из четырех спален на мансарде ведут в небольшой коридор у лестницы. Здесь же находится еще одна дверь, через которую можно попасть в общую ванную комнату. Но в помещении для владельцев коттеджа есть изолированная ванная и гардероб. 

3D Модель

Дизайн интерьера

Понравился этот дом?

Отправьте нам сообщение, и мы ответим на все интересующие вас вопросы.

Аккредитованы в ведущих банках

Корзина
Ваша корзина пуста
Выберите в каталоге интересующий товар и нажмите кнопку "В корзину"
Отложенные товары
Отложенных товаров нет
Выберите в каталоге интересующий товар и нажмите кнопку "В избранное"
Заказать звонок