Проекты домов Оформить
ипотеку
Стройматериалы Участки Строительство
Выберите свой регион строительства
Крымский федеральный округ
Крым
Close mobile menu

Характеристики дома:

Площадь дома

233.94 m2

Кол-во жилых комнат

4
Стоимость проекта ЭП
19,000 ₽

Хотите изменить планировку?

Отправьте запрос архитектору и обсудите с ним ваши идеи по перепланировке.

О проекте

S-234. Данный проект являет собой двухэтажный дом с гаражом на два автомобиля, террасой под навесом и рациональным использованием пространства. Такой дом станет идеальной покупкой для семьи с одним ребенком.
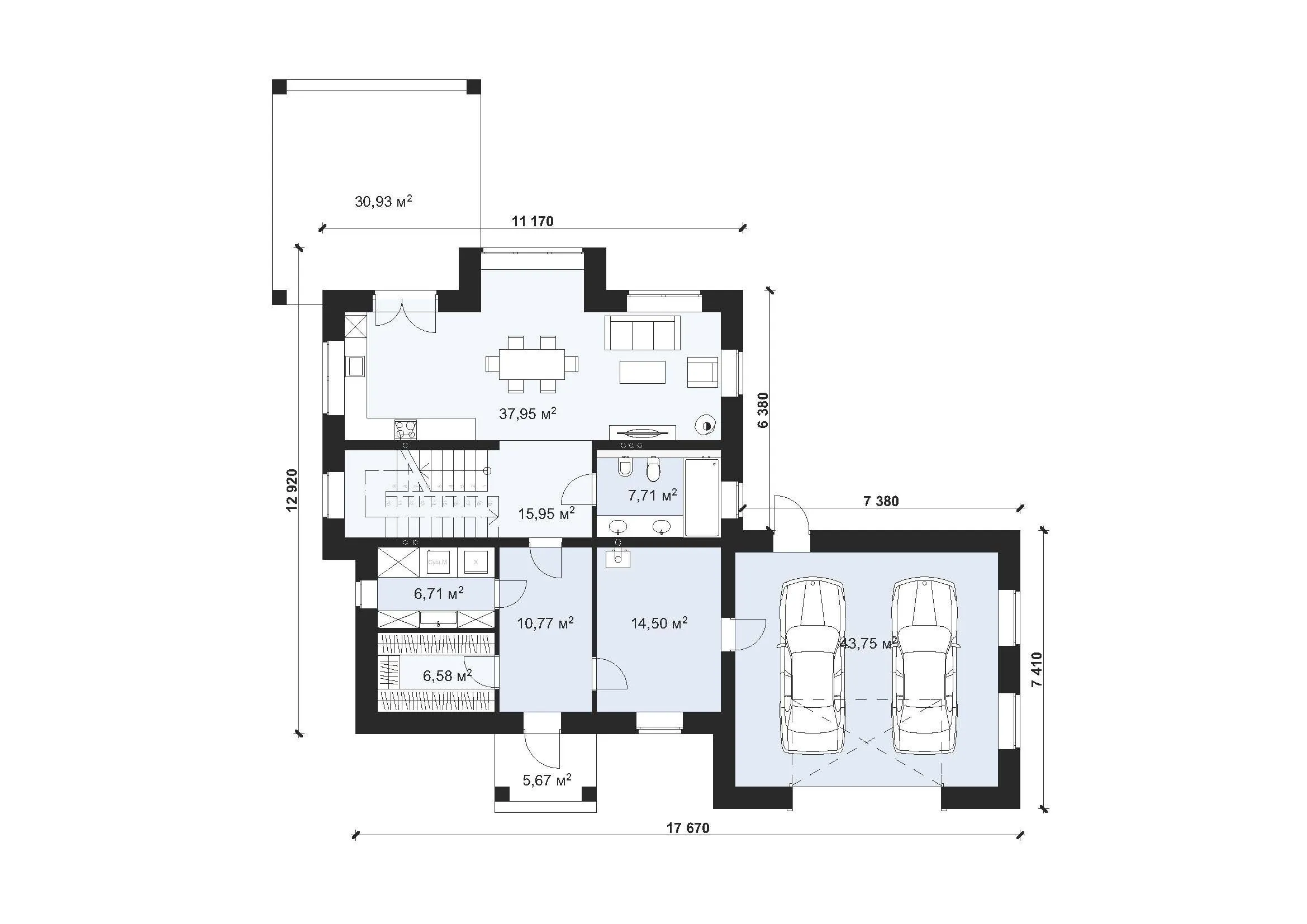
Обзор коттеджа предлагаю начать с гаража. Вряд ли необходимо долго рассказывать о преимуществах гаражного хранения автомобиля, но всё же хотелось бы отметить, как комфортно будет в плохую погоду ставить автомобиль в гараж и сразу заходить в дом, минуя улицу. Дальше вы можете оставить одежду в большой гардеробной и пройти в главную комнату первого этажа – гостиную, совмещенную с кухней и столовой. Достаточно просторное помещение станет еще более объёмным за счёт террасы, которая призвана стать продолжением гостиной в хорошую погоду. На первом этаже есть также ванная комната и хозяйственное помещение.
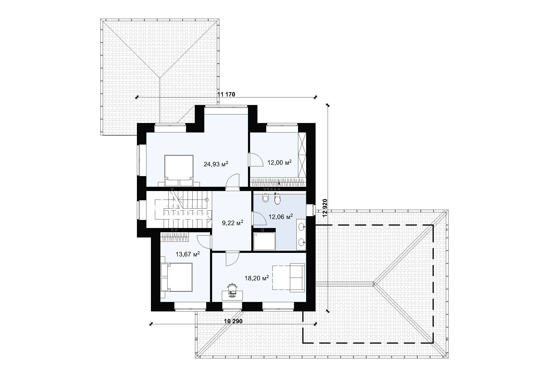
Второй этаж – классическая ночная зона загородного дома. Здесь есть родительская спальня с собственной большой гардеробной, детская спальня и даже кабинет, который, впрочем, можно сделать еще одной спальней. Кроме того, для второго этажа спроектировали немалых размеров (12-метровую!) ванную комнату.

3D Модель

Аккредитованы в ведущих банках

Корзина
Ваша корзина пуста
Выберите в каталоге интересующий товар и нажмите кнопку "В корзину"
Отложенные товары
Отложенных товаров нет
Выберите в каталоге интересующий товар и нажмите кнопку "В избранное"
Заказать звонок