Проекты домов Оформить
ипотеку
Стройматериалы Участки Строительство
Выберите свой регион строительства
Крымский федеральный округ
Крым
Close mobile menu

Характеристики дома:

Площадь дома

111 m2

Кол-во жилых комнат

4
Стоимость проекта АР+КР
40,900 ₽

Хотите изменить планировку?

Отправьте запрос архитектору и обсудите с ним ваши идеи по перепланировке.

О проекте

S4-111 (А-010). Дом спроектирован для строительства на участке со сложным рельефом. Он будет органично смотреться на склоне. Коттедж состоит из двух уровней и оборудован большим количеством вспомогательных помещений для комфортного отдыха.
Главную роль дизайнеры отвели кухне-гостиной. Эти пространства представляют собой одно целое, зонирование не предусмотрено. Изюминкой комнаты будет большое окно, из которого открывается красивый вид со склона.
Прямо из гостиной можно попасть в зону парной. Помимо парилки в ней предусмотрены раздевалка и душевая. На этом же уровне есть небольшая спальня и гостевой санузел.
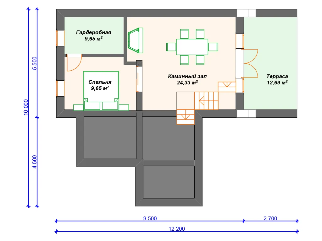
Дополнительный этаж этого коттеджа отведен под каминный зал, где можно устраивать званые ужины. Из него есть выход на веранду и в главную спальню, оборудованную собственным гардеробом.
Еще одно необычное решение — использование двух разных материалов. Нижний уровень архитекторы предлагают сделать каменным, верхний — из оцилиндрованного бревна или бруса.

Аккредитованы в ведущих банках

Корзина
Ваша корзина пуста
Выберите в каталоге интересующий товар и нажмите кнопку "В корзину"
Отложенные товары
Отложенных товаров нет
Выберите в каталоге интересующий товар и нажмите кнопку "В избранное"
Заказать звонок