Проекты домов Оформить
ипотеку
Стройматериалы Участки Строительство
Выберите свой регион строительства
Крымский федеральный округ
Крым
Close mobile menu

Характеристики дома:

Площадь дома

266 m2

Кол-во жилых комнат

4
Стоимость проекта АР+КР
41,500 ₽

Хотите изменить планировку?

Отправьте запрос архитектору и обсудите с ним ваши идеи по перепланировке.

О проекте

Интересный проект коттеджа рассчитан на постоянное проживание и отдых небольшой семьи из 2-3 человек. Дом прекрасно подойдет для строительства на неблагоприятном грунте с высоким уровнем грунтовых вод.
Весь первый этаж занимают бытовые и технические помещения. Особенно стоит отметить, кроме гаража на два автомобиля, прекрасную зону релаксации с множеством вспомогательных помещений.
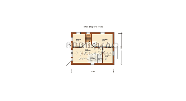
На втором этаже расположены жилые комнаты. Эффективная планировка этажа способствует достижению максимального удобства для проживания. При увеличении состава семьи возможно кабинет перепланировать под спальную комнату.

Аккредитованы в ведущих банках

Корзина
Ваша корзина пуста
Выберите в каталоге интересующий товар и нажмите кнопку "В корзину"
Отложенные товары
Отложенных товаров нет
Выберите в каталоге интересующий товар и нажмите кнопку "В избранное"
Заказать звонок