Проекты домов Оформить
ипотеку
Стройматериалы Участки Строительство
Выберите свой регион строительства
Крымский федеральный округ
Крым
Close mobile menu

Характеристики дома:

Площадь дома

282 m2

Кол-во жилых комнат

6+
Стоимость проекта АР+КР
64,870 ₽

Хотите изменить планировку?

Отправьте запрос архитектору и обсудите с ним ваши идеи по перепланировке.

О проекте

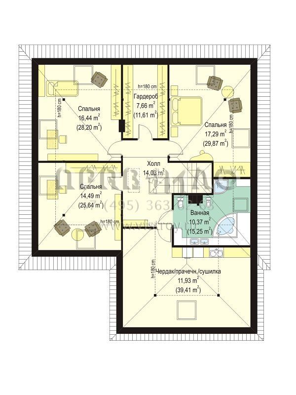
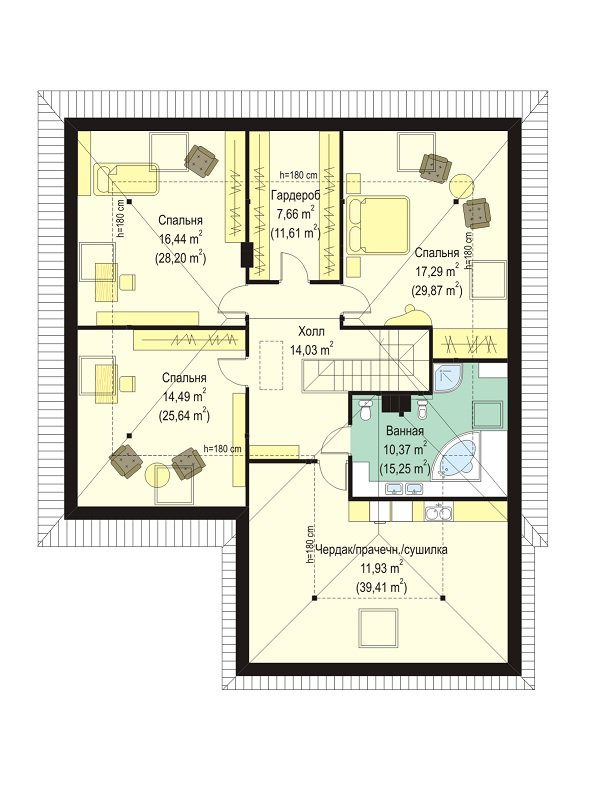
S8-282 (Наталья 2). Проект, который мы представляем вашему вниманию, разработан специально для участков, которые получают мало солнечной энергии из-за своего местоположения относительно сторон света. Гостиная, расположенная таким образом, что она получает свет с трех сторон благодаря окнам и выходу в сад, обеспечивает живительное тепло и яркий свет. Кухня отделена от других помещений, но находится поблизости от гостиной и столовой, которые, ihrerseits, объединены в одном помещении. Зона обеденной зоны благодаря удачной планировке гармонично соседствует с гостиной.

Дополнительно, на первом этаже имеется спальня, кабинет, ванная комната и гараж, вмещающий два легковых автомобиля. Оборудование чердака можно оставить на следующий этап строительства дома и приступить к нему после того, как основные помещения первого этажа будут готовы для проживания. Там с легкостью разместятся три полноценные спальни, ванная комната и техническое помещение над гаражом, функциональное назначение которого хозяева смогут определить сами, в зависимости от потребностей. Будет ли это сушилка для белья или игровая комната для детей, решать вам.

Аккредитованы в ведущих банках

Корзина
Ваша корзина пуста
Выберите в каталоге интересующий товар и нажмите кнопку "В корзину"
Отложенные товары
Отложенных товаров нет
Выберите в каталоге интересующий товар и нажмите кнопку "В избранное"
Заказать звонок