Проекты домов Оформить
ипотеку
Стройматериалы Участки Строительство
Выберите свой регион строительства
Крымский федеральный округ
Крым
Close mobile menu

Характеристики дома:

Площадь дома

298 m2

Кол-во жилых комнат

5
Стоимость проекта АР+КР
88,920 ₽

Хотите изменить планировку?

Отправьте запрос архитектору и обсудите с ним ваши идеи по перепланировке.

О проекте

S8-298 (Раскидистый). Этот роскошный дом представляет идеальное жилище для семьи из 4-5 человек. Архитектурный ансамбль с многоскатной керамической кровлей разделен на различные секции, обладает множеством современных деталей. Основание дома выполнено из бетона, стены состоят из блоков.

Входя в дом, мы оказываемся в просторной прихожей, откуда можно попасть в гостиную с камином, в столовую, кухню и туалетную комнату.

Спальная зона располагается в другом крыле дома, на которую можно попасть из гостиной. Здесь находятся три спальни, удобная ванная комната и кабинет, который при необходимости можно превратить в дополнительную спальню.

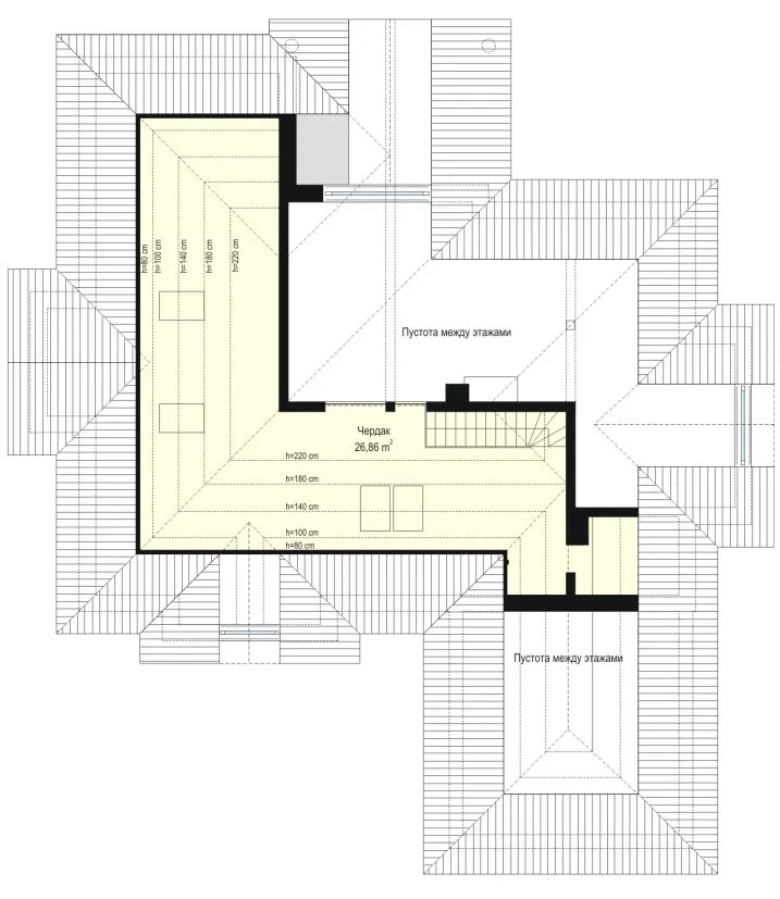
В хозяйственной части дома расположены гараж на две машины, котельная и кладовая. По плану предусмотрен чердак, который можно использовать как зону отдыха, кинотеатр или спортзал.

Преимуществом этой виллы являются высокие потолки в гостиной и множество стеклянных панелей, что делает внутреннее пространство еще более светлым и просторным.

Конструкция дома сложная, поэтому требует значительных инвестиций при строительстве, но благодаря современным материалам для изоляции и отличному утеплению, затраты на эксплуатацию виллы будут минимальными.

Дизайн интерьера

1/3

Понравился этот дом?

Отправьте нам сообщение, и мы ответим на все интересующие вас вопросы.

Аккредитованы в ведущих банках

Корзина
Ваша корзина пуста
Выберите в каталоге интересующий товар и нажмите кнопку "В корзину"
Отложенные товары
Отложенных товаров нет
Выберите в каталоге интересующий товар и нажмите кнопку "В избранное"
Заказать звонок