Проекты домов Оформить
ипотеку
Стройматериалы Участки Строительство
Выберите свой регион строительства
Крымский федеральный округ
Крым
Close mobile menu

Характеристики дома:

Площадь дома

144 m2

Кол-во жилых комнат

5
Стоимость проекта АР+КР
53,170 ₽

Хотите изменить планировку?

Отправьте запрос архитектору и обсудите с ним ваши идеи по перепланировке.

О проекте

S8-144-2 (Радостный с Гаражом). Этот проект включает в себя уютный одноэтажный коттедж с прилегающим гаражом для одного автомобиля и просторным жилым мансардным этажом. Архитектурное решение предусматривает строение с двускатной крышей, что добавляет ему изысканности.
Основание здания укреплено мощной бетонной подготовкой, а стены выполнены из прочных бетонных блоков, декорированных тонким слоем штукатурки на фасаде. Крыша покрыта керамической черепицей, обеспечивая надежную защиту от непогоды.
В проекте предусмотрено просторное крыльцо перед входом, уютная терраса, окна с деревянными ставнями, просторный балкон, а также отделка фасадов деревом, придавая зданию особый шарм. Планировка дома проста и функциональна, что делает строительство доступным по финансам и не требующим излишних усилий.
На первом этаже предусмотрены помещения для общего пользования: просторная гостиная с выходом на террасу, столовая, кухня и уютный рабочий кабинет, который при необходимости может быть использован в качестве дополнительной спальни. Здесь также расположены душевая и туалет, а также котельная с оборудованием для подогрева воды и отопления дома. Гараж имеет отдельный вход для удобства.
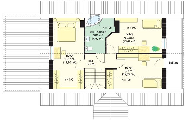
На мансардном этаже предусмотрен небольшой коридор, три уютные спальни и просторная ванная комната с туалетом.
Этот дом идеально подойдет для семьи из 4-5 человек, обеспечивая им комфорт и уютное проживание.

Аккредитованы в ведущих банках

Корзина
Ваша корзина пуста
Выберите в каталоге интересующий товар и нажмите кнопку "В корзину"
Отложенные товары
Отложенных товаров нет
Выберите в каталоге интересующий товар и нажмите кнопку "В избранное"
Заказать звонок