Проекты домов Оформить
ипотеку
Стройматериалы Участки Строительство
Выберите свой регион строительства
Крымский федеральный округ
Крым
Close mobile menu

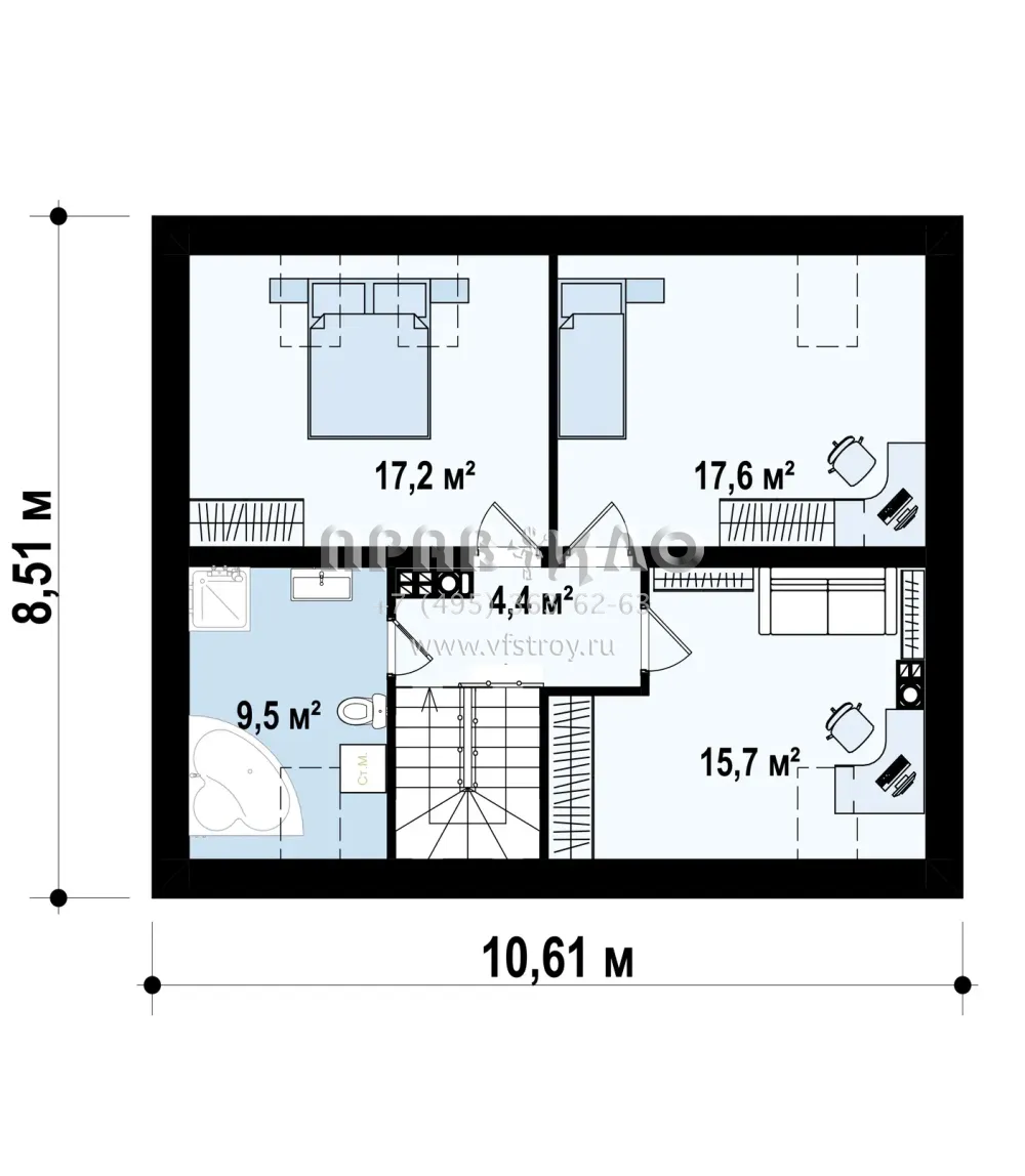
Характеристики дома:

Площадь дома

135 m2

Кол-во жилых комнат

5
Стоимость проекта АР+КР
52,000 ₽

Хотите изменить планировку?

Отправьте запрос архитектору и обсудите с ним ваши идеи по перепланировке.

О проекте

S3-135-1 (Z14) Это очень маленький коттедж, который покоряет создаваемым уютом и грамотной планировкой помещений. Компактные габариты постройки не мешают проживающим в ней людям чувствовать себя комфортно.

В доме с мансардным этажом предусмотрено четыре жилые комнаты. Три спальни располагаются наверху. Они объединены одним коридором у лестницы, из которого можно попасть в общую ванную. Комнату на первом уровне можно превратить в кабинет, гостевую или детскую.

Достаточно компактная гостиная не вызывает чувства стесненности. Этому способствует ее объединение с обеденным пространством и кухней. Но при этом архитекторам удалось зонировать пространство за счет камина и двух входов в зону для приготовления пищи.

На первом этаже также есть санузел. Рядом расположена котельная, которую можно использовать как кладовую для хранения велосипедов, самокатов, садового инвентаря.

3D Модель

Аккредитованы в ведущих банках

Корзина
Ваша корзина пуста
Выберите в каталоге интересующий товар и нажмите кнопку "В корзину"
Отложенные товары
Отложенных товаров нет
Выберите в каталоге интересующий товар и нажмите кнопку "В избранное"
Заказать звонок