Проекты домов Оформить
ипотеку
Стройматериалы Участки Строительство
Выберите свой регион строительства
Крымский федеральный округ
Крым
Close mobile menu

Характеристики дома:

Площадь дома

149,2 m2

Кол-во жилых комнат

5
Стоимость проекта АР+КР
49,800 ₽

Хотите изменить планировку?

Отправьте запрос архитектору и обсудите с ним ваши идеи по перепланировке.

О проекте

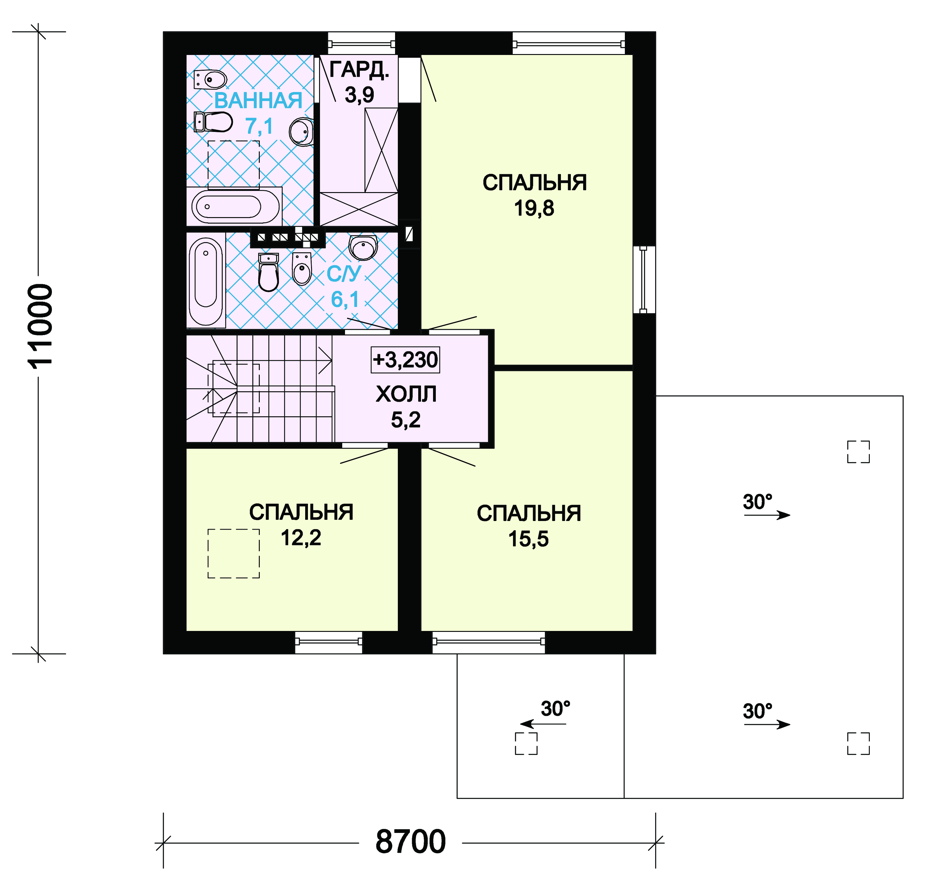
S7-149 (3-37a) Функциональный и удобный дом для семейного круглогодичного проживания. Проектировщики уделили особое внимание его энергоэффективности. Они предлагают возводить стены из газобетона, который благодаря низкому коэффициенту теплопроводности требует минимального утепления. Для сокращения затрат на строительство коттеджа дизайнеры отказались от пристроенного гаража. Здесь его роль играет площадка с навесом, которая находится рядом с крыльцом. Она будет защищать автомобиль от осадков. Кухню-столовую и гостиную архитекторы отделили друг от друга. Но проход между ними сделали достаточно широким, чтобы было удобно принимать большие компании гостей. Если кто-то из них решит остаться на ночь, место для него также найдется в отдельном жилом помещении внизу. Мансардный уровень разделили между тремя спальнями. Причем санузла тут два. Один из них — персонально для супружеской пары. Вход в него находится в их комнате вместе с гардеробом.

Аккредитованы в ведущих банках

Корзина
Ваша корзина пуста
Выберите в каталоге интересующий товар и нажмите кнопку "В корзину"
Отложенные товары
Отложенных товаров нет
Выберите в каталоге интересующий товар и нажмите кнопку "В избранное"
Заказать звонок