Проекты домов Оформить
ипотеку
Стройматериалы Участки Строительство
Выберите свой регион строительства
Крымский федеральный округ
Крым
Close mobile menu

Характеристики дома:

Площадь дома

190,7 m2

Кол-во жилых комнат

4
Стоимость проекта АР+КР
55,800 ₽

Хотите изменить планировку?

Отправьте запрос архитектору и обсудите с ним ваши идеи по перепланировке.

О проекте

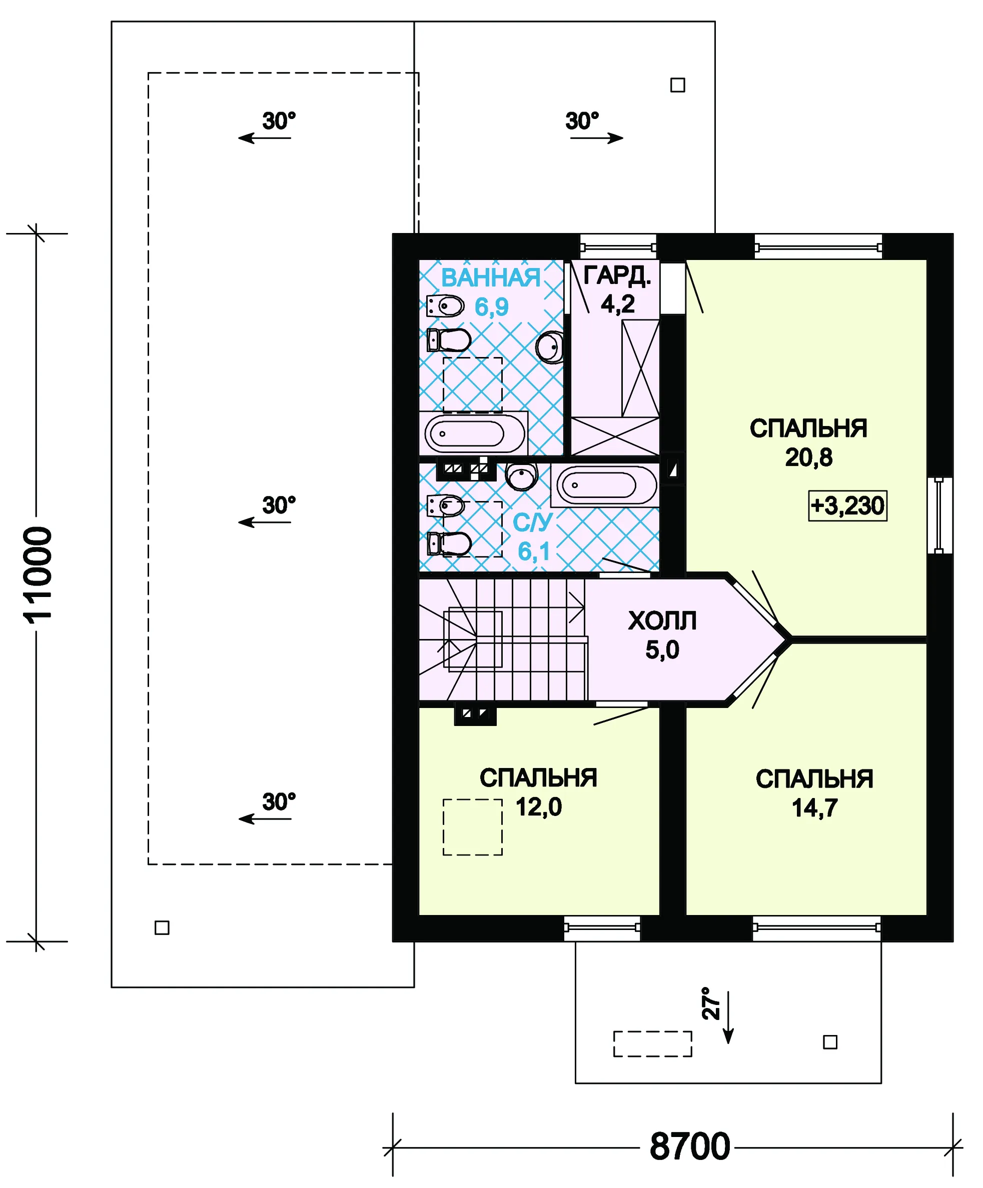
S7-190 (3-37c) Дом в современном стиле площадью в 190 м2, который может порадовать своего владельца сразу несколькими интересными особенностями. Начать знакомство с этим коттеджем можно прямо с прихожей. Из нее гости и хозяева попадают в просторную гостиную с большими окнами. В отдельной комнате, но не отделенном перегородками, находится кухня-столовая, а чуть дальше в коридоре — санузел. На первом этаже предусмотрен длинный гараж на две машины с выходом на задний двор, а также терраса, куда можно попасть из кухни. Вспомогательные помещения — гардероб и топочная-хозкомната. На втором уровне находятся три спальни. Одна из них — для хозяев дома. В ней есть собственное место для хранения вещей с окном и удобная изолированная ванная. Рядом расположен еще один санузел для нужд остальных членов семьи. Скатная асимметричная крыша в сочетании с оформлением фасадов минеральными материалами делает постройку привлекательной внешне.

Аккредитованы в ведущих банках

Корзина
Ваша корзина пуста
Выберите в каталоге интересующий товар и нажмите кнопку "В корзину"
Отложенные товары
Отложенных товаров нет
Выберите в каталоге интересующий товар и нажмите кнопку "В избранное"
Заказать звонок