Проекты домов Оформить
ипотеку
Стройматериалы Участки Строительство
Выберите свой регион строительства
Крымский федеральный округ
Крым
Close mobile menu

Характеристики дома:

Площадь дома

223,0 m2

Кол-во жилых комнат

6+
Стоимость проекта АР+КР
59,800 ₽

Хотите изменить планировку?

Отправьте запрос архитектору и обсудите с ним ваши идеи по перепланировке.

О проекте

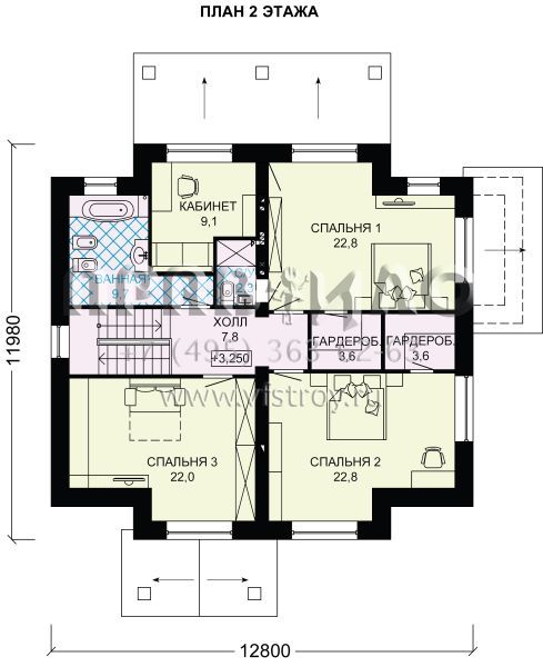
S7-223 (3-28а) Коттедж площадью в 224 м2 отличается от других подобных построек необычной формой стен и крыши. Архитекторы частично отошли от традиционного прямоугольника, благодаря чему жилище смотрится живописно и органично вписывается в ландшафт. Половину места на первом этаже занимает гостевая зона. Она представлена гостиной-столовой (почти 50 кв. м) и частично отделенной от них кухней. Перегородка расположена таким образом, чтобы закрывать процессы приготовления еды, но не мешать сервировке стола к званому обеду. Отдельно стоит остановиться на планировке мансарды. Дизайнеры приложили максимум усилий, чтобы сделать комнаты комфортными для владельцев дома. Спальня супружеской пары оборудована собственным санузлом, гардеробом и кабинетом. Есть еще общая ванная комната, которой могут пользоваться проживающие в коттедже дети. В одной из детских также есть гардероб.

Аккредитованы в ведущих банках

Корзина
Ваша корзина пуста
Выберите в каталоге интересующий товар и нажмите кнопку "В корзину"
Отложенные товары
Отложенных товаров нет
Выберите в каталоге интересующий товар и нажмите кнопку "В избранное"
Заказать звонок