Проекты домов Оформить
ипотеку
Стройматериалы Участки Строительство
Выберите свой регион строительства
Крымский федеральный округ
Крым
Close mobile menu

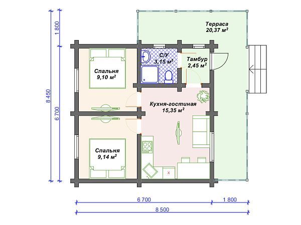
Характеристики дома:

Площадь дома

60 m2

Кол-во жилых комнат

2
Стоимость проекта АР+КР
35,100 ₽

Хотите изменить планировку?

Отправьте запрос архитектору и обсудите с ним ваши идеи по перепланировке.

О проекте

S4-60 (ДС-142). Небольшой одноэтажный дом оборудован всем необходимым для комфортной жизни. Благодаря максимальной функциональности коттедж можно использовать в различных целях. Это жилище может служить гостевым домиком, жилищем для прислуги, арендой виллой в загородном клубе, небольшой дачей.
Постройка внутри разделена на три больших пространства. Одно из них — гостиная. В ней проектировщики предлагают поставить также кухонный уголок и стол для обедов и ужинов. Рядом располагается санузел.
Две другие комнаты предназначены для сна. Они имеют одинаковую площадь, а двери из них выходят прямо в гостиную.
Дополнительный плюс — терраса в передней части постройки. Ее можно использовать для посиделок весной и летом. Она же выполняет функцию защиты входной двери от осадков.
Использование дерева для возведения стен позволяет отказаться от утепления и сложной фасадной отделки дома.

Аккредитованы в ведущих банках

Корзина
Ваша корзина пуста
Выберите в каталоге интересующий товар и нажмите кнопку "В корзину"
Отложенные товары
Отложенных товаров нет
Выберите в каталоге интересующий товар и нажмите кнопку "В избранное"
Заказать звонок