Проекты домов Оформить
ипотеку
Стройматериалы Участки Строительство
Выберите свой регион строительства
Крымский федеральный округ
Крым
Close mobile menu

Характеристики дома:

Площадь дома

157 m2

Кол-во жилых комнат

5
Стоимость проекта АР+КР
35,500 ₽

Хотите изменить планировку?

Отправьте запрос архитектору и обсудите с ним ваши идеи по перепланировке.

О проекте

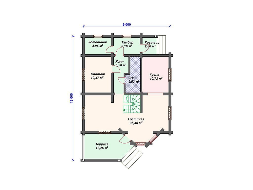
Дом общей площадью 157 кв м. Габариты дома (по краям) - 9.00х13.00 м. Деревянный дом выполнен из бревна, диаметром 240 мм. Перегородки в доме выполнены из деревянного каркаса. Строительство здания осуществляется на свайно-ростверковом фундаменте. Перекрытия 1 и 2 эт.- деревянные балки. Покрытие кровли - металлочерепица. Конструкция крыши у дома - простая двухскатная.

Вход в дом осуществляется с небольшого крыльца. Заходим в дом и попадаем в тамбур, выполняющий роль прихожей. Напротив входной двери находится котельная. Далее холл, проходим прямо, по левой стороне размещён с/у 5 кв м, напротив комната, которую можно использовать как гостевую или кабинета. В этой же части дома расположена кухня 10.7 кв м.
Из холла мы проходим в просторную гостиную 35 кв м, украшением которой служит небольшой эркер. Так же из гостиной имеется выход на небольшую терраса 12 кв м, в которой удобно разместить зону отдыха. Лестница на второй этаж в расположена в гостиной, практически в центре дома.
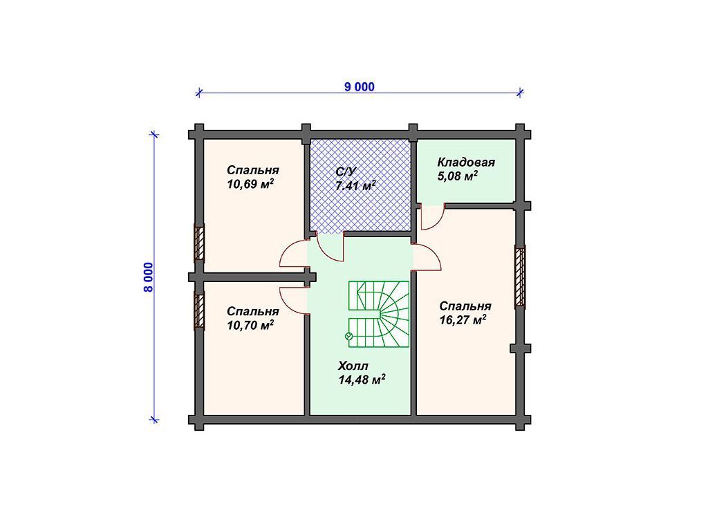
Поднимаясь по лестнице по забежным ступеням, сразу попадаем в просторный холл 14 кв м, из которого мы можем пройти в 3 спальни: две спальни по 10 кв м и одна спальня 16 кв м с персональной кладовой, которую можно использовать, как гардеробную. Так же на этаже имеется с/у 7 кв м. Деревянный загородный дом прекрасно подойдёт для семьи из 4-5 человек.

Благодаря просторной гостиной удобно принимать большую компанию друзей.

Аккредитованы в ведущих банках

Корзина
Ваша корзина пуста
Выберите в каталоге интересующий товар и нажмите кнопку "В корзину"
Отложенные товары
Отложенных товаров нет
Выберите в каталоге интересующий товар и нажмите кнопку "В избранное"
Заказать звонок