Проекты домов Оформить
ипотеку
Стройматериалы Участки Строительство
Выберите свой регион строительства
Крымский федеральный округ
Крым
Close mobile menu

Характеристики дома:

Площадь дома

416 m2

Кол-во жилых комнат

4
Стоимость проекта АР+КР
45,200 ₽

Хотите изменить планировку?

Отправьте запрос архитектору и обсудите с ним ваши идеи по перепланировке.

О проекте

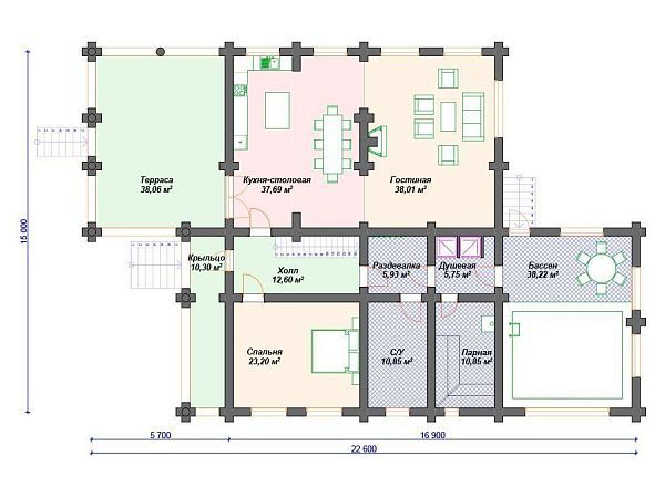
Деревянный дом прямоугольной формы с цокольным этажом, выполнен из бревна 340 мм. Конструкция крыши - сложная. Строительство здания осуществляется на ленточный сборно-железобетонный. Вход в дом осуществляется с крыльца в холл дома, из которого сразу открывается лестница на второй этаж. Площадь холла 12.6 кв м.

При входе по левой стороне ведёт дверь в кухню-столовую и гостиную. Кухня-столовая совмещена с гостиной, образуя единое большое пространство площадью 75.7 кв м, из которого можно выйти на крытую просторную террасу, площадью 38 кв м. В зоне гостиной предусмотрен камин, что добавляет дому уюта и тепла. По правой стороне холла расположена "мокрая зона" - сауна, душевая, с/у, раздевалка и бассейн. На этаже имеется комната 23.2 кв м. Спальная зона по традиции расположена на верхнем этаже. 3 спальни с комфортной жилой площадью – 37.43 кв м и две 23 кв. м. Также здесь есть санузел с душевой кабиной.
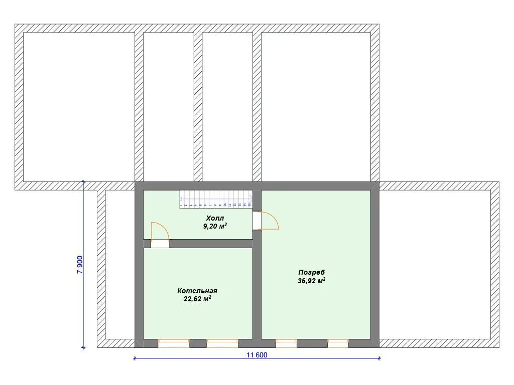
Планировка дома предполагает второй свет выходящий над зоной гостиной. В плане цокольного этажа технические помещения - погреб почти 37 кв м и котельная рассчитанная под газовое отопление дома.

Проект удобного и комфортного дома. Здесь прекрасно разместится семья более 4 человек.

Аккредитованы в ведущих банках

Корзина
Ваша корзина пуста
Выберите в каталоге интересующий товар и нажмите кнопку "В корзину"
Отложенные товары
Отложенных товаров нет
Выберите в каталоге интересующий товар и нажмите кнопку "В избранное"
Заказать звонок