Проекты домов Оформить
ипотеку
Стройматериалы Участки Строительство
Выберите свой регион строительства
Крымский федеральный округ
Крым
Close mobile menu

Характеристики дома:

Площадь дома

315 m2

Кол-во жилых комнат

4
Стоимость проекта АР+КР
46,900 ₽

Хотите изменить планировку?

Отправьте запрос архитектору и обсудите с ним ваши идеи по перепланировке.

О проекте

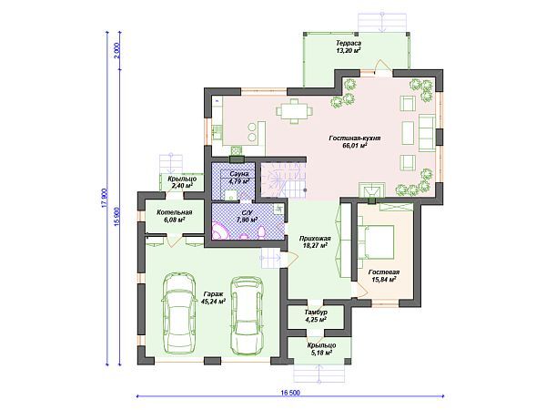
S4-315 (К-273) Двухэтажный дом, с полноценным вторым этажом. Выполнен из газобетона, отделка наружных стен - штукатурка. Строительство здания осуществляется на фундаменте - монолитная плита. Вход в дом осуществляется с крыльца, накрытого одной крышей с гаражом. Гараж расположен по левой стороне главного фасада дома. Заходим через тамбур в просторную прихожую 18 кв м. Сразу при входе по правой стороне ведёт дверь в гостевую комнату 15.8 кв м. По этой же стороне расположен шкаф-купе для верхней одежды. По левой стороне прихожей расположена дверь в гараж. Гараж на две машины выполнен в виде пристройки. Площадь 45 кв м. На этаже имеется санузел 7.5 кв м с душевой кабиной, из которого можно пройти в сауну. Гостиная в доме совмещена с кухней в одно просторное помещение. Площадь 66 кв м. В зоне гостиной расположен камин, который придаст красоты и уюта помещению. Отсюда можно выйти на террасу, на задний двор дома. В доме также предусмотрено помещение для котельной 6 кв м, в которое можно пройти из гаража. Так же предусмотрен отдельный вход с улицы. Второй этаж занимают три спальни от 22-25 кв м, санузел 13 кв м и общая гардеробная. Одна из спален имеет выход на балкон, расположенный над террасой. Проект большого дома с комфортными площадями для круглогодичного проживания.

Аккредитованы в ведущих банках

Корзина
Ваша корзина пуста
Выберите в каталоге интересующий товар и нажмите кнопку "В корзину"
Отложенные товары
Отложенных товаров нет
Выберите в каталоге интересующий товар и нажмите кнопку "В избранное"
Заказать звонок