Проекты домов Оформить
ипотеку
Стройматериалы Участки Строительство
Выберите свой регион строительства
Крымский федеральный округ
Крым
Close mobile menu

Характеристики дома:

Площадь дома

228 m2

Кол-во жилых комнат

5
Стоимость проекта АР+КР
37,100 ₽

Хотите изменить планировку?

Отправьте запрос архитектору и обсудите с ним ваши идеи по перепланировке.

О проекте

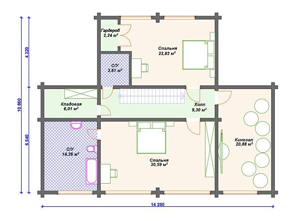
S4-228 (ДС-045) Дом прямоугольной формы, выполнен из бруса 200х180 мм. Конструкция кровли - простая двухскатная. Вход в дом осуществляется с входной лестницы сразу в тамбур 4 кв м, а затем в прихожую равноценную по площади тамбуру. Т.к в доме нет гардеробной, прихожая отличное место, где удобно разместить небольшой гардероб. Из прихожей сразу попадаем в зону гостиной, площадью 30.55 кв м, откуда предусмотрен вход в с/у совмещённый с ванной. Гостиная совмещена с холлом почти 13 кв м, из которого открываются двери в спальную комнату 14 кв м, котельную около 6 кв м и "мокрую зону"-моечную и парную. В кухню-столовую попадаем через проем в несущей стене из гостиной. Помещение просторное, комфортное для размещения столовой зоны. Поднимаемся на второй этаж и проходим в продолговатый холл 9 кв м, в конце которого расположена кладовая 6 кв м. По обеим сторонам холла размещены две комфортные по площади спальни 22.82 кв м (с гардеробом) и 30.58 кв м ( с собственным с/у). Так же этаже имеется комната почти 21 кв м. Если нет необходимости ещё в одной спальне, можно использовать к примеру, как домашний кинотеатр. Проект деревянного дома для постоянного проживания.

Аккредитованы в ведущих банках

Корзина
Ваша корзина пуста
Выберите в каталоге интересующий товар и нажмите кнопку "В корзину"
Отложенные товары
Отложенных товаров нет
Выберите в каталоге интересующий товар и нажмите кнопку "В избранное"
Заказать звонок