Проекты домов Оформить
ипотеку
Стройматериалы Участки Строительство
Выберите свой регион строительства
Крымский федеральный округ
Крым
Close mobile menu

Характеристики дома:

Площадь дома

98 m2

Кол-во жилых комнат

4
Стоимость проекта АР+КР
35,300 ₽

Хотите изменить планировку?

Отправьте запрос архитектору и обсудите с ним ваши идеи по перепланировке.

О проекте

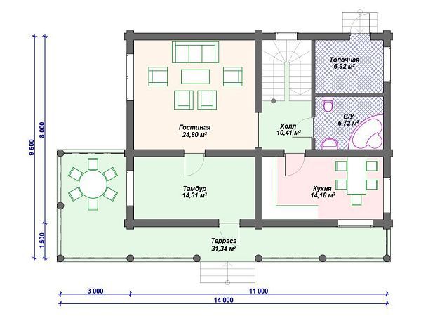
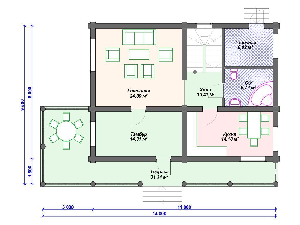
Общая площадь дома - 98 кв м. Габариты дома - 11.24х13.64 м. Дом квадратнойой формы, выполнен из оцилиндрованного бревна, диаметром 240 мм. Строительство здания осуществляется на свайно-ростверковом фундаменте (буронабивные сваи с монолитной лентой). Перекрытие этажа - по деревянным балкам. Покрытие кровли - металлочерепица. Одноэтажный дом накрыт вальмовой крышей. Габариты дома без террасы и крыльца - 9.74х9.74 м.

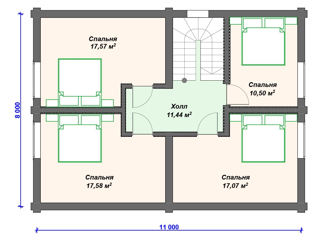
Вход в дом осуществляется с небольшого крыльца, попадаем в тамбур. Из тамбура осуществляется вход в котельную, рассчитанную для газового оборудования. Из тамбура попадаем в холл. С правой стороны при выходе удобно разместить шкаф-купе для одежды. Далее размещено маленький санузел. В левой части дома расположены 3 небольшие спальни.
Гостиная с кухней совмещены в единое помещение, но зонально они разделены. В кухню можно попасть как чрез гостиную, так и через холл. По середине между гостиной и кухонной зоной размещен камин. Из гостиной предусмотрен выход на террасу 12 кв м, на которой можно разместить зону отдыха со столом.

Дом прекрасно подойдет для проживания семьи из 3-4 человек.

Аккредитованы в ведущих банках

Корзина
Ваша корзина пуста
Выберите в каталоге интересующий товар и нажмите кнопку "В корзину"
Отложенные товары
Отложенных товаров нет
Выберите в каталоге интересующий товар и нажмите кнопку "В избранное"
Заказать звонок