Проекты домов Оформить
ипотеку
Стройматериалы Участки Строительство
Выберите свой регион строительства
Крымский федеральный округ
Крым
Close mobile menu

Характеристики дома:

Площадь дома

180 m2

Кол-во жилых комнат

4
Стоимость проекта АР+КР
37,600 ₽

Хотите изменить планировку?

Отправьте запрос архитектору и обсудите с ним ваши идеи по перепланировке.

О проекте

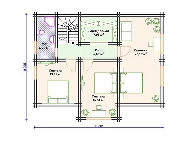
S4-180 (ДС-152) Двухэтажный дом прямоугольной формы, выполнен из бруса. Конструкция кровли - двухскатная. Общая площадь 180 кв м. Строительство здания осуществляется на свайно-ростверковом фундаменте. В дом можно войти с крыльца, красиво оформленного перилами. С крыльца мы попадаем в небольшой, но функциональный тамбур, в котором можно расположить шкаф для хранения одежды. Далее проходим в холл. Здесь по левую руку размещена лестница на второй этаж, под маршем которой расположен вход в совмещённый санузел с душевой кабиной. По правой стороне холла сразу при входе котельная, площадь которой рассчитана под газовое оборудование. Через проём в стене из холла проходим в просторное помещение занимаемое кухней-гостиной 43.63 кв м, из которого можно выйти на террасу, накрытой отдельной крышей от дома. На этаже имеется комната 11.8 кв м, заявлена в проекте, как гостевая. На втором этаже спальная зона из трёх комфортных по площади спальных комнат - 13 кв м, 16.64 кв м и 27 кв м. Так же на этаже предусмотрена общая гардеробная и совмещённый с/у с душевой кабиной. Хороший деревянный дом, в котором есть всё необходимое для комфортной загородной жизни семьи из 3-4 человек.

Аккредитованы в ведущих банках

Корзина
Ваша корзина пуста
Выберите в каталоге интересующий товар и нажмите кнопку "В корзину"
Отложенные товары
Отложенных товаров нет
Выберите в каталоге интересующий товар и нажмите кнопку "В избранное"
Заказать звонок