Проекты домов Оформить
ипотеку
Стройматериалы Участки Строительство
Выберите свой регион строительства
Крымский федеральный округ
Крым
Close mobile menu

Характеристики дома:

Площадь дома

177 m2

Кол-во жилых комнат

5
Стоимость проекта АР+КР
36,200 ₽

Хотите изменить планировку?

Отправьте запрос архитектору и обсудите с ним ваши идеи по перепланировке.

О проекте

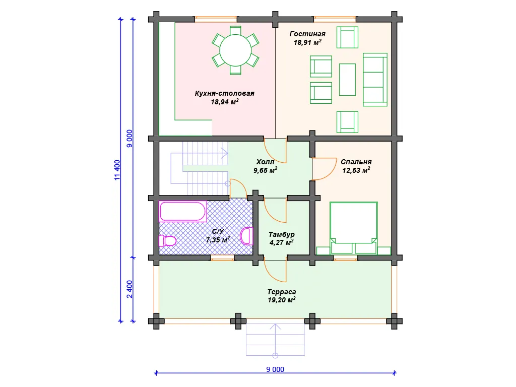
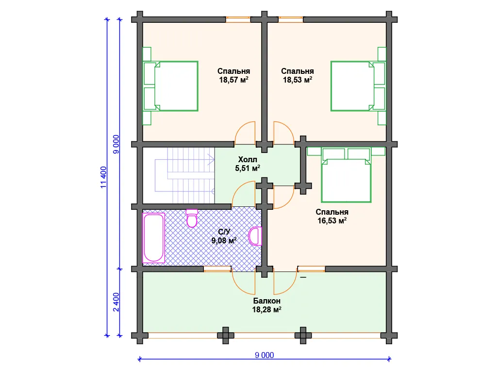
S4-177 (ДС-053) Дом двухэтажной квадратной формы, выполнен из бруса 200х185 мм. Конструкция кровли - простая двухскатная. Строительство здания осуществляется на свайно-ростверковом фундаменте. Вход в дом осуществляется с террасы, расположенной во всю длину дома. Заходим в тамбур, площадью 4 кв м. Существенное преимущество тамбура состоит в том, что при его наличии значительная доля уличной грязи и воды не заносится непосредственно в дом. В тамбуре можно оставить верхнюю одежду, переобуться. При выходе из тамбура мы попадаем в холл 9.6 кв м, из которого ведут двери в комфортный по площади санузел с ванной 7 кв м, спальню 12.5 кв м, кухню-столовую 18.5 кв м и гостиную около 20 кв м. Кухня-столовая совмещена с гостиной, образуя единое большое пространство площадью более 37.8 кв м. Поднимаемся на 2 этаж мансардный этаж и попадаем в небольшой холл. В мансарде расположены 3 комфортные по площади спальни (16.6 кв м и две комнаты 18.6 кв м) и санузел 9 кв м с ванной. Из спальни 16.5 кв м и с/у предусмотрен выход на балкон расположенный над террасой. Дом очень популярен среди наших заказчиков, так как он является экономически выгодным - все в нем есть - ничего лишнего. Прекрасно подойдёт для постоянного проживания семьи более 4 человек.

Аккредитованы в ведущих банках

Корзина
Ваша корзина пуста
Выберите в каталоге интересующий товар и нажмите кнопку "В корзину"
Отложенные товары
Отложенных товаров нет
Выберите в каталоге интересующий товар и нажмите кнопку "В избранное"
Заказать звонок