Проекты домов Оформить
ипотеку
Стройматериалы Участки Строительство
Выберите свой регион строительства
Крымский федеральный округ
Крым
Close mobile menu

Характеристики дома:

Площадь дома

173 m2

Кол-во жилых комнат

4
Стоимость проекта АР+КР
36,300 ₽

Хотите изменить планировку?

Отправьте запрос архитектору и обсудите с ним ваши идеи по перепланировке.

О проекте

Деревянный дом, выполнен из бревна. Конструкция крыши - простая двускатная.

Входим в дом через крыльцо и попадаем в небольшой тамбур 4 кв м, а затем в холл из которого можно попасть в котельную 4 кв м и с/у площадью почти 5 кв м расположенные по правой стороне при входе. На этаже также размещена комната 9.8 кв м. Кухня, площадью 16 кв м, отделена от гостиной несущей стеной. Гостиная равноценна по площади с кухней и имеет выход на террасу 17 кв м (во всю длину дома).
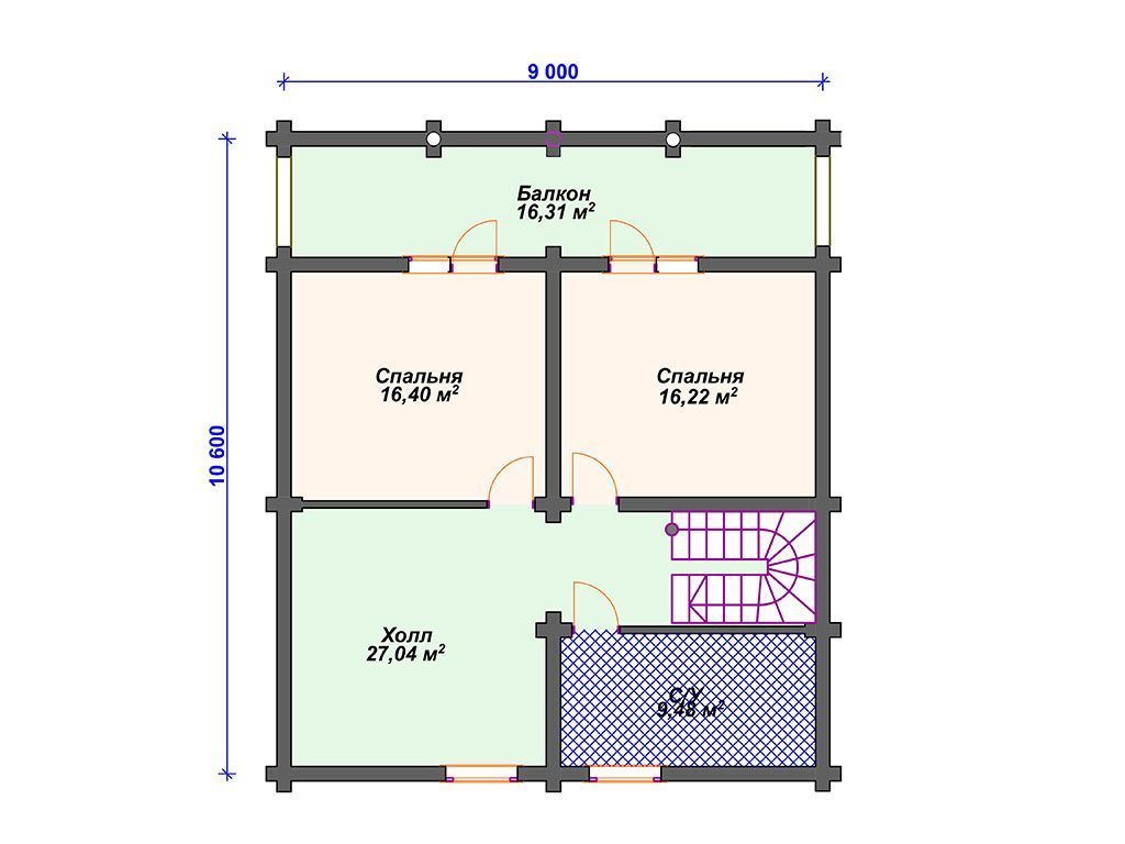
Лестница на второй этаж расположена в холле, между с/у и кухней и освещается через специальное окно. Две спальни примерно равной площади располагаются на 2 этаже.

Из обеих комнат предусмотрен выход на балкон. Так же на этаже расположен с/у 9 кв м.

Аккредитованы в ведущих банках

Корзина
Ваша корзина пуста
Выберите в каталоге интересующий товар и нажмите кнопку "В корзину"
Отложенные товары
Отложенных товаров нет
Выберите в каталоге интересующий товар и нажмите кнопку "В избранное"
Заказать звонок