Проекты домов Оформить
ипотеку
Стройматериалы Участки Строительство
Выберите свой регион строительства
Крымский федеральный округ
Крым
Close mobile menu

Характеристики дома:

Площадь дома

168 m2

Кол-во жилых комнат

5
Стоимость проекта АР+КР
37,700 ₽

Хотите изменить планировку?

Отправьте запрос архитектору и обсудите с ним ваши идеи по перепланировке.

О проекте

Деревянный дом прямоугольной формы, выполнен из бревна диаметром 300 мм. Конструкция крыши - простая двускатная. Строительство здания осуществляется на свайно-ростверковом фундаменте.

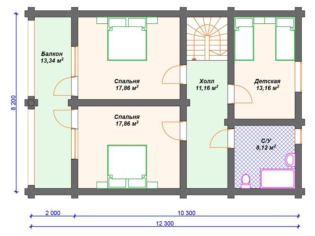
Входим в дом с крыльца накрытого небольшим козырьком и попадаем в тамбур 3.5 кв м. Наличие тамбура очень важно в доме. Благодаря ему сохраняется тепло, не попадает в дом грязь и пыль с улицы. Здесь же можно разместить небольшую гардеробную (вешалки) для верхней одежды. Из тамбура можно попасть в котельную 5 кв м расположенную по правой стороне сразу при входе. Отопление дома рассчитано под электрический котёл. Далее проходим в холл 10.8 кв м прямоугольной формы, в конце которого на заднем фасаде дома размещена межэтажная лестница. Днем на лестнице будет всегда светло благодаря специальному окну.
Правую сторону холла занимают совмещённый санузел с ванной и комната 10.6 кв м. Левая половина дома отдана под гостиную 18 кв м и кухню 18 кв м. Гостиная совмещена с кухней, что в данном случае очень удобно, т.к. нет лишних перегородок. Из гостиной можно попасть на террасу 13 кв м, расположенную во всю ширину дома. Поднимаясь по лестнице на второй этаж попадаем в холл, из которого можно пройти в две спальных комнаты 17.8 кв м (из обеих предусмотрен выход на балкон) и детскую 13 кв м. Так же на этаже имеется санузел 8 кв м с ванной.

Дом простой, прямоугольной формы рассчитан на круглогодичное проживание.

Аккредитованы в ведущих банках

Корзина
Ваша корзина пуста
Выберите в каталоге интересующий товар и нажмите кнопку "В корзину"
Отложенные товары
Отложенных товаров нет
Выберите в каталоге интересующий товар и нажмите кнопку "В избранное"
Заказать звонок