Проекты домов Оформить
ипотеку
Стройматериалы Участки Строительство
Выберите свой регион строительства
Крымский федеральный округ
Крым
Close mobile menu

Характеристики дома:

Площадь дома

152 m2

Кол-во жилых комнат

4
Стоимость проекта АР+КР
45,000 ₽

Хотите изменить планировку?

Отправьте запрос архитектору и обсудите с ним ваши идеи по перепланировке.

О проекте

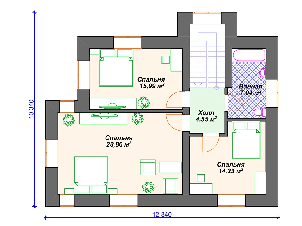
S4-152 (К-027)  Дом общей площадью 152 кв м. Габариты дома - 10.34х12.34 м. Простой дом прямоугольной формы, двухэтажный, 2-ой этаж полноценный. Строительство здания осуществляется на монолитной плите. Перекрытия 1 эт - по плите, 2 эт - ж/б плиты. Покрытие кровли - металлочерепица. Конструкция крыши у дома - вальмовая. Вход в дом осуществляется через крыльцо (почти 9 кв м), крытое односкатной крышей. Попадаем в тамбур, площадью практически 8 кв м. Здесь удобно разместить шкаф-купе для одежды, так как отдельной гардеробной проекте не предусмотрено. Далее попадаем в продолговатый холл, в конце которого стоит п-образная лестница. Из холла слева ведут распашные двери в светлую просторную гостиную 28.8 кв м. Кухня совмещена с гостиной, но есть небольшая перегородка между ними для визуального разделения. Кухня площадью почти в 16 кв м. По правой стороне холла размещены с/у и котельная. Санузел на 1-ом этаже небольшой - 3.7 кв м. Котельная предусмотрена для отопления дома газовым оборудованием и имеет два входа - из холла и отдельный вход с улицы. На второй этаж поднимаемся по комфортной п-образной лестнице, которая освещается дневным светом через большое окно. Поднимаемся и проходим в небольшой холл 4.5 кв м. На этаже 3 спальни (28.8 кв м, 15.9 кв м, 14.2 кв. м.). так же имеется ванная 7 кв м. Загородный дом прекрасный вариант, в котором может проживать семья из 3-4 человек.

Аккредитованы в ведущих банках

Корзина
Ваша корзина пуста
Выберите в каталоге интересующий товар и нажмите кнопку "В корзину"
Отложенные товары
Отложенных товаров нет
Выберите в каталоге интересующий товар и нажмите кнопку "В избранное"
Заказать звонок