Проекты домов Оформить
ипотеку
Стройматериалы Участки Строительство
Выберите свой регион строительства
Крымский федеральный округ
Крым
Close mobile menu

Характеристики дома:

Площадь дома

140 m2

Кол-во жилых комнат

5
Стоимость проекта АР+КР
43,500 ₽

Хотите изменить планировку?

Отправьте запрос архитектору и обсудите с ним ваши идеи по перепланировке.

О проекте

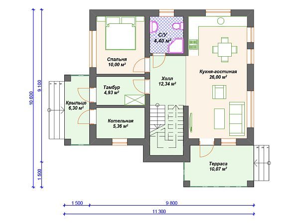
S4-140 (К-247) Дом общей площадью -140 кв м. Габариты дома - 10.60х11.30 м. Дом двухэтажный мансардный. Проект дома прямоугольной формы, выполнен из газобетона, толщиной 400 мм. Облицован штукатуркой. Углы дома и некоторые части фасада украшены с помощью декоративной плитки. Перегородки в доме выполнены из газобетона, толщиной 150 мм. Строительство здания осуществляется на монолитной плите. Перекрытие 1-го этажа - по плите, 2-го этажа - ж/б плиты. Покрытие кровли - металлочерепица. Вход в дом осуществляется с крыльца, накрытого односкатной крышей. Рядом с основным входом в дом расположена дверь в котельную. Заходим в дом и попадаем в довольно просторный тамбур в 5 кв м, в котором удобно разместить зону для гардероба. Далее выходим в продолговатый холл. С правой стороны размещается лестница, слева - санузел. Рядом с тамбуром расположена гостевая спальня. Гостиная и кухня совмещены в одно общее помещение, площадью 26 кв м. Из гостиной есть выход на террасу в 10 кв м, на которой можно разместить зону отдыха. На 2-ой этаж поднимаемся по п-образной лестнице с площадкой и в холле. На 2-ом этаже размещены 3 комфортные спальни: 2 спальни по 12,5 кв м и одна большая прямоугольной формы в 15 кв м. В одной из спален есть небольшой балкон. Также на этаже 2 санузла: один общий, а второй находится в большой спальне.

Аккредитованы в ведущих банках

Корзина
Ваша корзина пуста
Выберите в каталоге интересующий товар и нажмите кнопку "В корзину"
Отложенные товары
Отложенных товаров нет
Выберите в каталоге интересующий товар и нажмите кнопку "В избранное"
Заказать звонок