Проекты домов Оформить
ипотеку
Стройматериалы Участки Строительство
Выберите свой регион строительства
Крымский федеральный округ
Крым
Close mobile menu

Характеристики дома:

Площадь дома

210 m2

Кол-во жилых комнат

5
Стоимость проекта АР+КР
67,800 ₽

Хотите изменить планировку?

Отправьте запрос архитектору и обсудите с ним ваши идеи по перепланировке.

О проекте

S3-210-3(Z160 A GP) - Это большой дом в традиционном европейском стиле. Его особенностью является необычная планировка дневной зоны. Она занимает весь первый этаж. В гостиной четко разделены места для отдыха, приготовления и приема пищи.
Возле входа в дом располагается комната с отдельной дверью наружу. Ее можно использовать как кабинет и вести прием посетителей на дому. Это пространство можно полностью изолировать от жилых помещений.
Одна из стен гостиной сделана стеклянной и позволяет выходить на веранду. В углу располагается камин для создания уютной обстановки вечером. По центру находится пространство под встроенный шкаф, которое отделяет место для отдыха от кухонного уголка.
Столовая не уступает гостиной по комфорту. Большая площадь остекления способствует хорошей освещенности. Рядом находится кладовая.
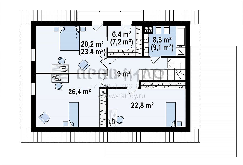
Второй этаж дома занимают три спальни и ванная комната. В одном из помещений находится свой гардероб.

Аккредитованы в ведущих банках

Корзина
Ваша корзина пуста
Выберите в каталоге интересующий товар и нажмите кнопку "В корзину"
Отложенные товары
Отложенных товаров нет
Выберите в каталоге интересующий товар и нажмите кнопку "В избранное"
Заказать звонок