Проекты домов Оформить
ипотеку
Стройматериалы Участки Строительство
Выберите свой регион строительства
Крымский федеральный округ
Крым
Close mobile menu

Характеристики дома:

Площадь дома

206 m2

Кол-во жилых комнат

5
Стоимость проекта АР+КР
44,800 ₽

Хотите изменить планировку?

Отправьте запрос архитектору и обсудите с ним ваши идеи по перепланировке.

О проекте

S4-206 (А-020). Это вариация проекта S4-206(A-021), отличающаяся темными цветами отделки фасада верхнего этажа. В остальном данный проект представляет из себя интересный комбинированный дом, размеры которого позволят комфортно проживать в нём семье из 4-5 человек.
Поднимаемся на крыльцо и проходим внутрь строения. Из прихожей попадаем в холл, из которого можно войти в гостиную или в кабинет. Начнём с гостиной: она большая (40 квадратных метров) и функциональная, так как совмещает в себе и кухню, и столовую зону, и зону дневного отдыха с диваном и креслами. Теперь вернемся к кабинету: любители работы “на удалёнке” оценят это помещение по достоинству. Однако по желанию эту комнату можно превратить в гостевую спальню или, например, в игровую. На первом этаже также спроектирован просторная ванная комната.
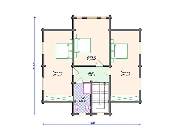
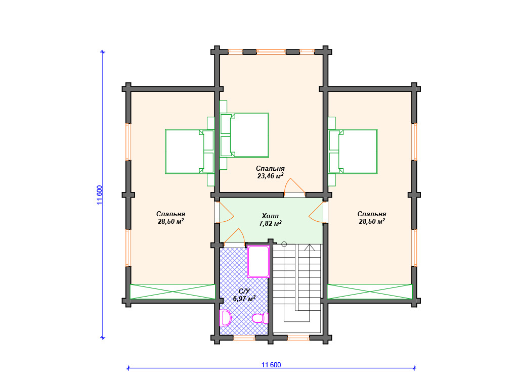
Второй этаж встречает нас холлом и тремя изолированными просторными спальнями. Добавим к этому санузел с душевой кабиной и получим идеальную ночную зону отдыха для Вас и Вашей семьи.

Аккредитованы в ведущих банках

Корзина
Ваша корзина пуста
Выберите в каталоге интересующий товар и нажмите кнопку "В корзину"
Отложенные товары
Отложенных товаров нет
Выберите в каталоге интересующий товар и нажмите кнопку "В избранное"
Заказать звонок