Проекты домов Оформить
ипотеку
Стройматериалы Участки Строительство
Выберите свой регион строительства
Крымский федеральный округ
Крым
Close mobile menu

Характеристики дома:

Площадь дома

182 m2

Кол-во жилых комнат

4
Стоимость проекта АР+КР
58,100 ₽

Хотите изменить планировку?

Отправьте запрос архитектору и обсудите с ним ваши идеи по перепланировке.

О проекте

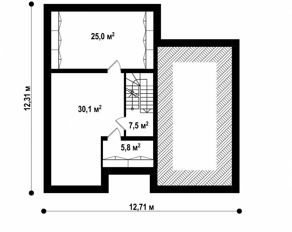
S3-182-9(Z24 P) - Это аккуратный снаружи и просторный внутри коттедж с большой гостиной и тремя жилыми комнатами. Проектом предусмотрен подвал, где можно устроить склад для хранения вещей, мастерскую, игровую комнату.
Дневная и ночная зоны распределены по противоположным сторонам коттеджа. Благодаря этому можно изолировать спальни от шума в гостиной, обеспечив комфорт для детей.
В этом доме кухня является частью гостиной. Но она располагается так, что при желании процессы готовки можно изолировать перегородкой. Для естественного освещения в кухне есть большое угловое окно.
Уют в зоне отдыха легко создать с помощью камина. А если гостям захочется выйти на свежий воздух, посиделки можно перенести на крытую веранду в задней части дома.
В коттедже предусмотрены 2 санузла. Один из них гостевой, вторым будут пользоваться проживающие в доме люди.

Дизайн интерьера

Понравился этот дом?

Отправьте нам сообщение, и мы ответим на все интересующие вас вопросы.

Аккредитованы в ведущих банках

Корзина
Ваша корзина пуста
Выберите в каталоге интересующий товар и нажмите кнопку "В корзину"
Отложенные товары
Отложенных товаров нет
Выберите в каталоге интересующий товар и нажмите кнопку "В избранное"
Заказать звонок