Проекты домов Оформить
ипотеку
Стройматериалы Участки Строительство
Выберите свой регион строительства
Крымский федеральный округ
Крым
Close mobile menu

Характеристики дома:

Площадь дома

169 m2

Кол-во жилых комнат

4
Стоимость проекта АР+КР
58,100 ₽

Хотите изменить планировку?

Отправьте запрос архитектору и обсудите с ним ваши идеи по перепланировке.

О проекте

s3-169-5 (Z338) Построенный по этому проекту коттедж идеально подойдет для организации загородного отдыха. Его можно рекомендовать и семье с детьми, если они любят принимать у себя в гостях шумные компании. 
Для вечеринок и застолий проектировщики предлагают использовать гостиную, площадь которой составляет почти 40 кв. метров. В погожие дни она будет полностью залита солнечным светом через большое французское окно. Более того, визуально комната кажется еще просторнее за счет того, что она занимает два уровня постройки. 
В теплое время года празднование можно перенести на улицу, тем более что в помещении для этого предусмотрено целых три выхода. 
Помимо гостиной с открытой кухней на первом уровне коттеджа находится также гараж с кладовой и небольшим спортивным залом. Не забыта также котельная-склад и гостевой санузел. 
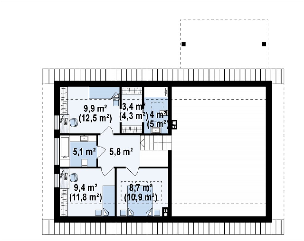
Все жилые помещения располагаются в мансарде. Для проживающих в двух спальнях людей предусмотрен общий санузел, но в третьей комнате есть собственный туалет и ванная. 

Аккредитованы в ведущих банках

Корзина
Ваша корзина пуста
Выберите в каталоге интересующий товар и нажмите кнопку "В корзину"
Отложенные товары
Отложенных товаров нет
Выберите в каталоге интересующий товар и нажмите кнопку "В избранное"
Заказать звонок