Проекты домов Оформить
ипотеку
Стройматериалы Участки Строительство
Выберите свой регион строительства
Крымский федеральный округ
Крым
Close mobile menu

Характеристики дома:

Площадь дома

164,95 m2

Кол-во жилых комнат

5
Стоимость проекта АР+КР
42,400 ₽

Хотите изменить планировку?

Отправьте запрос архитектору и обсудите с ним ваши идеи по перепланировке.

О проекте

Проект компактного дома с мансардным этажом и комбинированной отделкой декоративной штукатуркой. Проектом предусмотрена большая Г-образная терраса с крытой зоной для отдыха в любую погоду. Выход на террасу осуществляется как из гостиной, так и через холл.

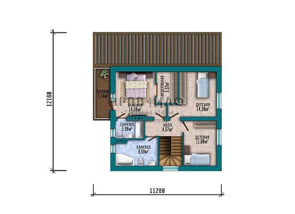
Отличительной особенностью второго этажа является наличие родительской спальни с отдельным санузлом, большого гардероба, а также выхода на балкон.

Проектом реализована монолитная фундаментная плита, но фундамент может быть адаптирован под Ваши геологические условия. Материал стен и перегородок: газобетонные блоки. Утепление стен по расчету, отталкиваясь от конкретного климатического района. Межэтажное перекрытие: монолитная плита. Кровля скатная, покрытие кровли: гибкая черепица. Все указанные материалы могут быть заменены на необходимые.

Расшифровка названия проекта: 309-165-1М: порядковый номер проекта 309, общая площадь 165 квадратных метров, 1 полноценный этаж, наличие мансардного этажа.

Аккредитованы в ведущих банках

Корзина
Ваша корзина пуста
Выберите в каталоге интересующий товар и нажмите кнопку "В корзину"
Отложенные товары
Отложенных товаров нет
Выберите в каталоге интересующий товар и нажмите кнопку "В избранное"
Заказать звонок