Проекты домов Оформить
ипотеку
Стройматериалы Участки Строительство
Выберите свой регион строительства
Крымский федеральный округ
Крым
Close mobile menu

Характеристики дома:

Площадь дома

159,6 m2

Кол-во жилых комнат

4
Стоимость проекта АР+КР
52,000 ₽

Хотите изменить планировку?

Отправьте запрос архитектору и обсудите с ним ваши идеи по перепланировке.

О проекте

Современный barnhouse: стиль и гармония с природой

Проект Z566 — это воплощение современного стиля barnhouse в гармонии с природой, функциональностью и эстетикой. Дом идеально подойдёт тем, кто ценит лаконичный дизайн, практичность и комфорт загородной жизни. Одноэтажная постройка с продуманной планировкой и просторной террасой создаёт атмосферу уюта и уединения, а большая площадь остекления обеспечивает максимальное проникновение естественного света и визуальную связь с окружающим ландшафтом.

Эстетика фасада и уютная придомовая зона

Фасад дома сочетает светлую штукатурку с контрастными акцентами в виде металлической кровли и деревянной обшивки, придавая внешнему облику изысканную современность. Строгая геометрия здания, характерная для стиля barnhouse, здесь дополнена элементами мягкого зонирования, такими как навес над террасой и приватные участки сада. Открытая зона с камином на участке подчеркивает концепцию жизни на природе и идеально подходит для уютных вечеров в кругу семьи и друзей.

Просторная и светлая дневная зона

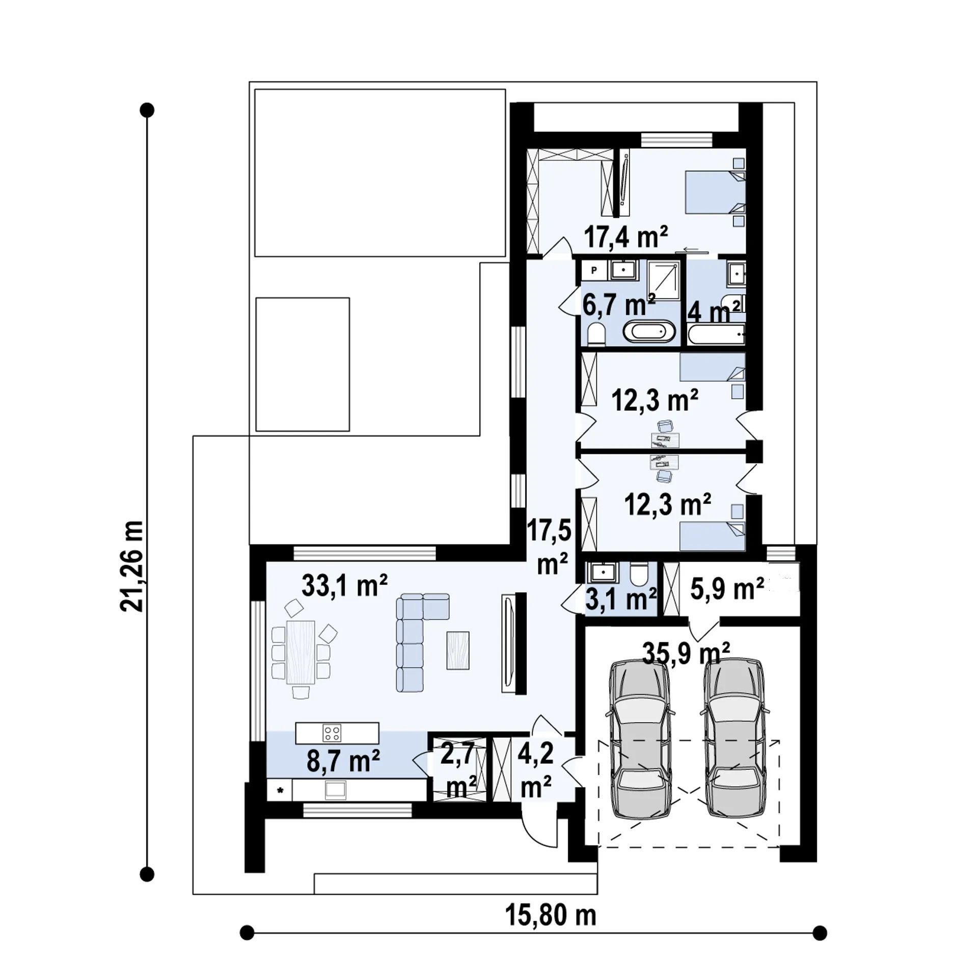
Внутреннее пространство организовано максимально рационально. Центральное место занимает просторная гостиная (33,1 м²) с камином и выходом на террасу, объединённая с обеденной зоной и кухней (8,7 м²). Благодаря открытой планировке и панорамным окнам эта часть дома наполнена светом и ощущением простора. Также предусмотрена кладовая рядом с кухней, что особенно удобно для хранения продуктов и кухонной утвари.

Уют и приватность для каждого члена семьи

В приватной зоне расположены две спальни площадью по 12,3 м², а также главная спальня (17,4 м²) с гардеробом и собственной ванной. Для остальных жильцов предусмотрена вторая полноценная ванная комната и отдельный туалет для гостей. Такое разделение зон повышает комфорт проживания и обеспечивает приватность каждому члену семьи.

Практичность и дополнительные удобства

Отдельного внимания заслуживает встроенный гараж на два автомобиля (35,9 м²), связанный с домом через холл, что особенно удобно в холодное или дождливое время года. Также предусмотрены помещения котельной — всё для удобства и эффективного быта.

Идеальный выбор для современной семьи

Проект Z566 — это идеальное решение для тех, кто хочет построить современный, энергоэффективный и уютный дом в пригороде или в живописной местности. Он объединяет архитектурную эстетику и функциональность, предлагая комфортное и стильное жильё, соответствующее актуальным требованиям и образу жизни современной семьи.

Аккредитованы в ведущих банках

Корзина
Ваша корзина пуста
Выберите в каталоге интересующий товар и нажмите кнопку "В корзину"
Отложенные товары
Отложенных товаров нет
Выберите в каталоге интересующий товар и нажмите кнопку "В избранное"
Заказать звонок