Проекты домов Оформить
ипотеку
Стройматериалы Участки Строительство
Выберите свой регион строительства
Крымский федеральный округ
Крым
Close mobile menu

Характеристики дома:

Площадь дома

139 m2

Кол-во жилых комнат

5
Стоимость проекта АР+КР
73,800 ₽

Хотите изменить планировку?

Отправьте запрос архитектору и обсудите с ним ваши идеи по перепланировке.

О проекте

Этот проект S3-139-7(Zz4) современного двухэтажного дома привлекает интересной отделкой с использованием деревянных элементов и крайне просторной террасой. Такой проект идеально подойдет для проживания семьи из 4-5 человек.
Центральным помещением первого этажа стала просторная гостиная, объединенная в одном пространстве с кухней и столовой. Не обошлось в гостиной и без камина – он будет дарить тепло в холодное время года. А когда захочется провести время на улице, можно выйти на большую террасу. Её размеры позволяют устраивать полноценные трапезы на свежем воздухе. Есть на первом этаже и спальня, а рядом с ней – ванная комната. Эта спальня отлично подойдет для гостей дома.
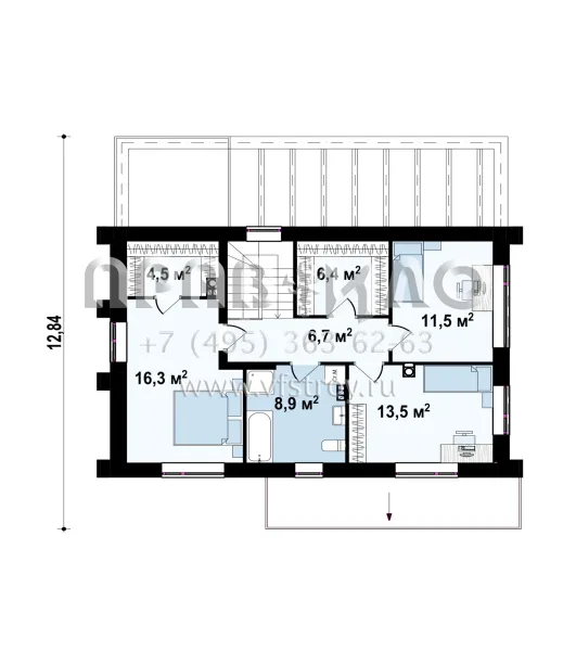
Второй этаж – ночная зона дома. Здесь есть три спальни, общая ванная комната и гардеробная. Еще одна гардеробная расположилась непосредственно в родительской спальне.


Аккредитованы в ведущих банках

Корзина
Ваша корзина пуста
Выберите в каталоге интересующий товар и нажмите кнопку "В корзину"
Отложенные товары
Отложенных товаров нет
Выберите в каталоге интересующий товар и нажмите кнопку "В избранное"
Заказать звонок