Проекты домов Оформить
ипотеку
Стройматериалы Участки Строительство
Выберите свой регион строительства
Крымский федеральный округ
Крым
Close mobile menu

Характеристики дома:

Площадь дома

290 m2

Кол-во жилых комнат

5
Стоимость проекта АР+КР
58,100 ₽

Хотите изменить планировку?

Отправьте запрос архитектору и обсудите с ним ваши идеи по перепланировке.

О проекте

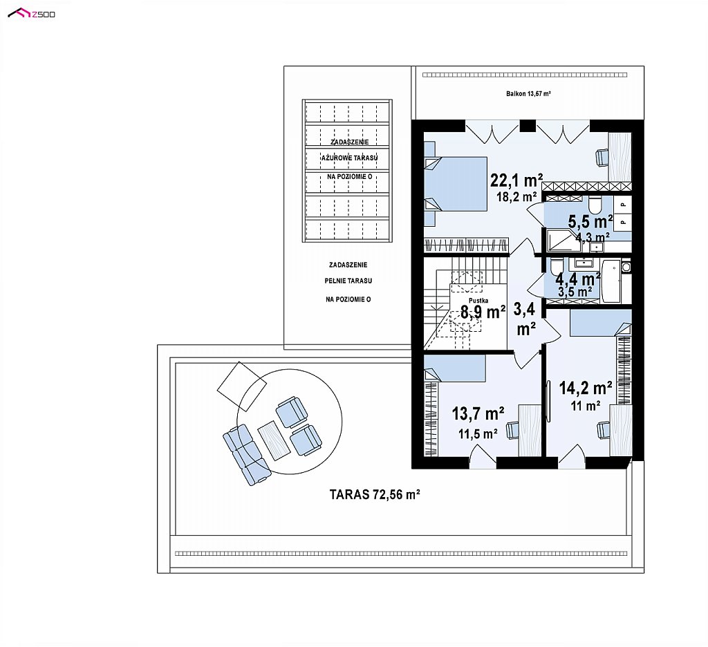
S3-290 (Z453) - При проектировании этого дома архитекторы нестандартно подошли как к выбору формы коттеджа, так и к планировке внутренних помещений. На первом этаже располагается дневная зона и спальня. Второй отведен под ночную зону. 

Одна из стен гостиной — стеклянная, через панорамные окна предусмотрен выход на просторную веранду. Кухня полностью открыта, но для хранения утвари и запасов есть закрытая кладовая. Рядом расположен санузел, а также гараж на одну машину с выходом в дом и котельную.
Спальня на первом этаже полностью изолирована от дневной зоны. В ней есть отдельный просторный гардероб и ванная комната. На втором этаже поместилось еще три спальни. Причем одна из них также имеет собственную ванную.

Вишенка на торте этого проекта — терраса площадью более 70 кв. метров, расположенная над гостиной. Выходы на нее есть из двух спален. Эта зона станет любимым местом для отдыха весь летний сезон.



Аккредитованы в ведущих банках

Корзина
Ваша корзина пуста
Выберите в каталоге интересующий товар и нажмите кнопку "В корзину"
Отложенные товары
Отложенных товаров нет
Выберите в каталоге интересующий товар и нажмите кнопку "В избранное"
Заказать звонок