Проекты домов Оформить
ипотеку
Стройматериалы Участки Строительство
Выберите свой регион строительства
Крымский федеральный округ
Крым
Close mobile menu

Характеристики дома:

Площадь дома

157 m2

Кол-во жилых комнат

4
Стоимость проекта АР+КР
58,100 ₽

Хотите изменить планировку?

Отправьте запрос архитектору и обсудите с ним ваши идеи по перепланировке.

О проекте

S3-157-7 (Z479) - этот строгий и стильный проект имеет мансарду, расположившуюся под четырехскатной кровлей, а отделка стен выполнена с помощью плитки “под камень” – смотрится это свежо и стильно, но по Вашему желанию внешняя отделка может быть выполнена и из других материалов. Такой дом идеально подойдет для проживания семьи из 4 человек.

Первый уровень дома предназначен для дневного времяпрепровождения. Центральное помещение здесь – гостиная, объединенная в едином пространстве с кухней и столовой. К кухне прилегает кладовая – она прекрасно подойдет для хранения необходимых хозяйке вещей и продуктов. Панорамные окна гостиной – это не только помощники в получении естественного света, но еще и двери, через которые мы попадаем на террасу. Ну а что на ней делать Вы и сами прекрасно знаете: чай, книга, разговоры с семьей и друзьями. Пространство под лестницей тоже не простаивает: там спроектирован санузел. Справа от прихожей организован вход в гараж на один автомобиль. 

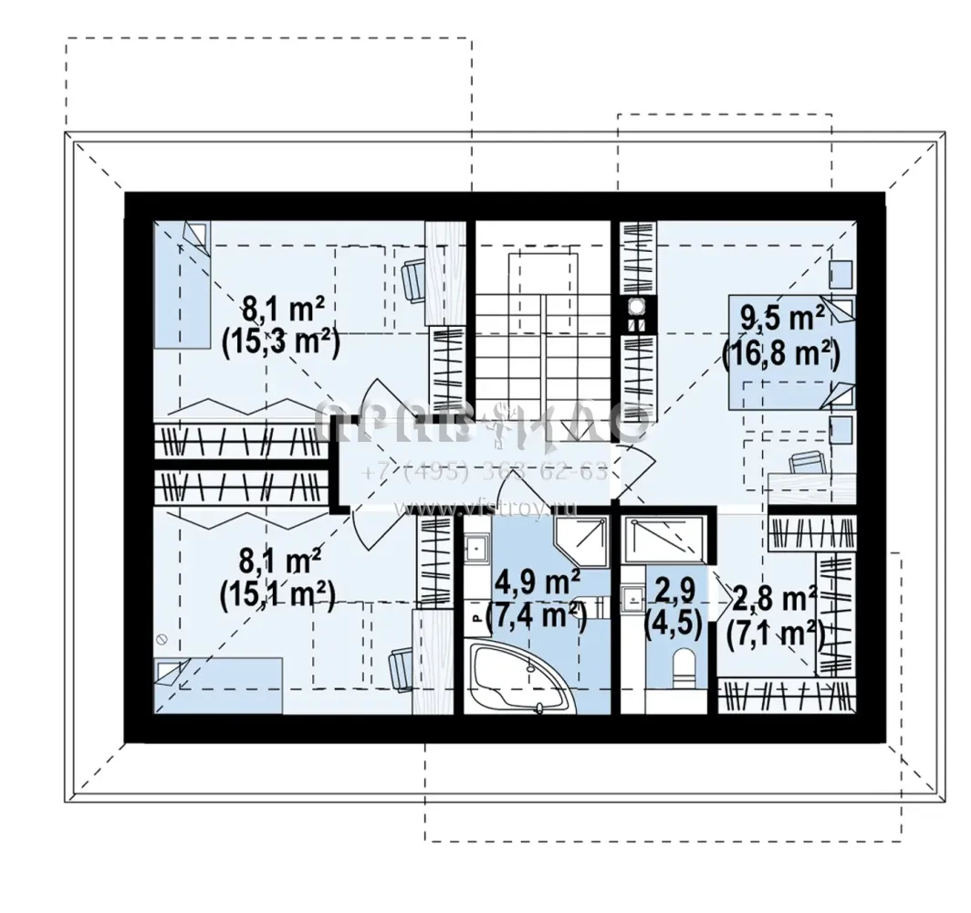
Мансарда – это ночная зона коттеджа. Здесь Вы найдете три спальни и одну общую ванную комнату. Родительская комната спроектирована по всем канонам “мастер-спальни”: здесь и свой гардероб, и собственная ванная комната. 

3D Модель

Аккредитованы в ведущих банках

Корзина
Ваша корзина пуста
Выберите в каталоге интересующий товар и нажмите кнопку "В корзину"
Отложенные товары
Отложенных товаров нет
Выберите в каталоге интересующий товар и нажмите кнопку "В избранное"
Заказать звонок