Проекты домов Оформить
ипотеку
Стройматериалы Участки Строительство
Выберите свой регион строительства
Крымский федеральный округ
Крым
Close mobile menu

Характеристики дома:

Площадь дома

133,2 m2

Кол-во жилых комнат

5
Стоимость проекта АР+КР
58,100 ₽

Хотите изменить планировку?

Отправьте запрос архитектору и обсудите с ним ваши идеи по перепланировке.

О проекте

Проект современного одноэтажного коттеджа Z577: Простор, комфорт и стиль

Проект Z577 – это воплощение современного стиля, функциональности и удобства. Этот одноэтажный дом площадью около 150 м² идеально подходит для семьи, ценящей комфорт, пространство и гармонию с природой. Планировка разделена на две функциональные зоны, что обеспечивает уединение и удобство для всех членов семьи.

Архитектура и внешний вид

Дизайн дома сочетает минимализм и природные элементы. Чистые линии, лаконичные формы и стильный фасад с контрастными акцентами делают этот дом по-настоящему эффектным. Белые стены гармонируют с деревянными вставками и большими панорамными окнами, которые наполняют пространство светом.

Современная двускатная крыша с гладким покрытием придает коттеджу спокойный и выразительный облик. Дополнительный уют создают террасы, расположенные по обе стороны дома – идеальные места для отдыха на свежем воздухе.

Планировка и удобство

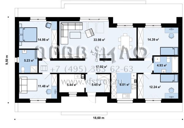
Проект Z577 создан с учетом потребностей современной семьи. Дом разделен на две жилые зоны:

  1. Общая зона – просторная гостиная (33,98 м²) с зоной отдыха и камином, объединенная с кухней (8,01 м²) и обеденной зоной. Здесь можно проводить время с семьей и друзьями, наслаждаясь видом на сад благодаря панорамному остеклению.
  2. Жилые зоны – две спальни в одном крыле (14,98 м² и 11,48 м²) и две спальни в другом (14,39 м² и 12,24 м²), что обеспечивает уединение для каждого члена семьи.
  3. Санузлы – предусмотрены два полноценных санузла (5,23 м² и 4,93 м²), что делает дом удобным даже для большой семьи.
  4. Дополнительные помещения – кладовая, гардеробные зоны и котельная, обеспечивающие порядок и комфорт.

Энергоэффективность и технологии

Проект Z577 разработан с учетом современных стандартов энергосбережения. Большие окна обеспечивают естественное освещение, а правильная ориентация дома помогает снизить затраты на отопление.

Кому подойдет этот дом?

Этот проект идеален для семей с детьми, любителей загородной жизни и ценителей современного архитектурного стиля. Благодаря удобной планировке и эргономичным решениям, дом станет комфортным местом для жизни в любое время года.

Если вы ищете стильный, удобный и функциональный одноэтажный дом – Z577 станет отличным выбором!

Аккредитованы в ведущих банках

Корзина
Ваша корзина пуста
Выберите в каталоге интересующий товар и нажмите кнопку "В корзину"
Отложенные товары
Отложенных товаров нет
Выберите в каталоге интересующий товар и нажмите кнопку "В избранное"
Заказать звонок