Проекты домов Оформить
ипотеку
Стройматериалы Участки Строительство
Выберите свой регион строительства
Крымский федеральный округ
Крым
Close mobile menu

Характеристики дома:

Площадь дома

108 m2

Кол-во жилых комнат

3
Стоимость проекта АР+КР
51,350 ₽

Хотите изменить планировку?

Отправьте запрос архитектору и обсудите с ним ваши идеи по перепланировке.

О проекте

S8-108-1 (Жемчужина 2). В этом проекте представлена рациональная планировка и оптимальные по величине жилые площади, рассчитанные на комфортное проживание 3-4 человек в доме «Жемчужина 2». Это одноэтажное здание под двускатной крышей имеет пристроенный просторный гараж на одну машину с отдельной крышей.
Форма дома выполнена в виде удлиненного прямоугольника с выступающим крыльцом, эркером и отдельными выходами на задний двор, представленными в виде двух стеклянных дверей с прилегающей частично открытой летней террасой. Входные группы выделены с помощью декоративной отделки клинкерным кирпичом.
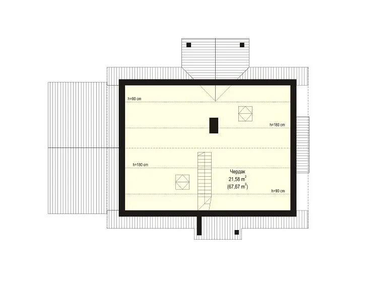
Внутреннее пространство дома включает в себя зоны гостиной, столовой, кухни, а также жилую часть, состоящую из двух спальных комнат и санузла. Проект предусматривает автономную систему отопления, для которой предусмотрена собственная котельная. Кроме того, в доме предусмотрена возможность переоборудования чердачного пространства под дополнительные жилые площади.
Благодаря простому дизайну и несложным формам, этот проект является доступным для строительства и функциональным для дальнейшего использования.

Аккредитованы в ведущих банках

Корзина
Ваша корзина пуста
Выберите в каталоге интересующий товар и нажмите кнопку "В корзину"
Отложенные товары
Отложенных товаров нет
Выберите в каталоге интересующий товар и нажмите кнопку "В избранное"
Заказать звонок