Проекты домов Оформить
ипотеку
Стройматериалы Участки Строительство
Выберите свой регион строительства
Крымский федеральный округ
Крым
Close mobile menu

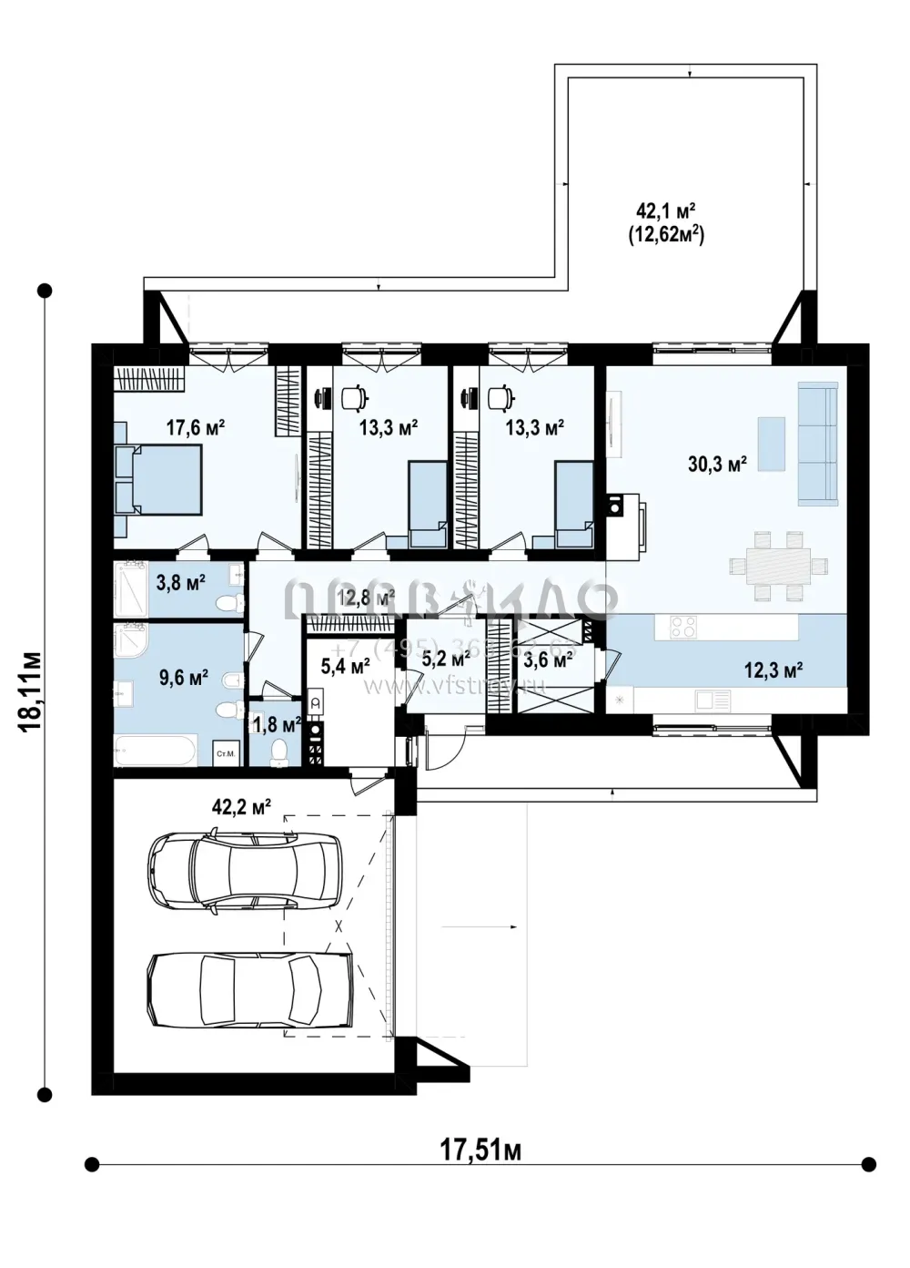
Характеристики дома:

Площадь дома

170 m2

Кол-во жилых комнат

4
Стоимость проекта АР+КР
73,800 ₽

Хотите изменить планировку?

Отправьте запрос архитектору и обсудите с ним ваши идеи по перепланировке.

О проекте

S3-170-3 (Zx135) - Минималистичный дизайн, простая конструкция и компактность делает этот дом очень привлекательным для людей, ценящих современный стиль.

Преимущества проекта:
• Линейная планировка упрощает доступ ко всем помещениям.
• Большой гараж на два автомобиля имеет вход как из дома, так и с улицы.
• Панорамное остекление, дает большое количество света.
• Дом впишется в любой ландшафт.
• Три санузла различной площади и оснащения помогут избежать очередей.
• Камин сделает семейные вечера еще более уютными.

Спальная зона состоит из трех комнат, и все они имеют места хранения и выход на небольшую террасу. 
Кухня отделена от гостиной островком с рабочей поверхностью. Это позволит сделать процесс приготовления пищи более увлекательным и продемонстрировать его гостям. Есть и вместительная кладовая, где можно хранить припасы.

Этот дом обеспечивает все необходимые нужды жильцов и отвечает всем требованиям надежности.

3D Модель

Аккредитованы в ведущих банках

Корзина
Ваша корзина пуста
Выберите в каталоге интересующий товар и нажмите кнопку "В корзину"
Отложенные товары
Отложенных товаров нет
Выберите в каталоге интересующий товар и нажмите кнопку "В избранное"
Заказать звонок