Проекты домов Оформить
ипотеку
Стройматериалы Участки Строительство
Выберите свой регион строительства
Крымский федеральный округ
Крым
Close mobile menu

Характеристики дома:

Площадь дома

109 m2

Кол-во жилых комнат

5
Стоимость проекта АР+КР
58,100 ₽

Хотите изменить планировку?

Отправьте запрос архитектору и обсудите с ним ваши идеи по перепланировке.

О проекте

S3-109-11(Z438 pk) - Уютный двухэтажный коттедж с небольшой площадью застройки. Отличный вариант для небольших земельных участков. На двух этажах общей площадью более 100 кв. м. разместилось три спальни, кабинет и просторная кухня-гостиная. К дому пристроены две компактные крытые террасы. Выход на улицу с панорамным остеклением – вы сможете любоваться садом в любое время.
На первом этаже дома устроено техническое помещение, кабинет. Кухня объединена с гостиной. За счет отсутствия лишних перегородок пространство кажется светлее и просторнее. Зону гостиной можно превратить в место для отдыха, установить домашний кинотеатр, камин – обустроить ее по своему вкусу. Площадь в 22 кв. м. дает множество возможностей для дизайна.
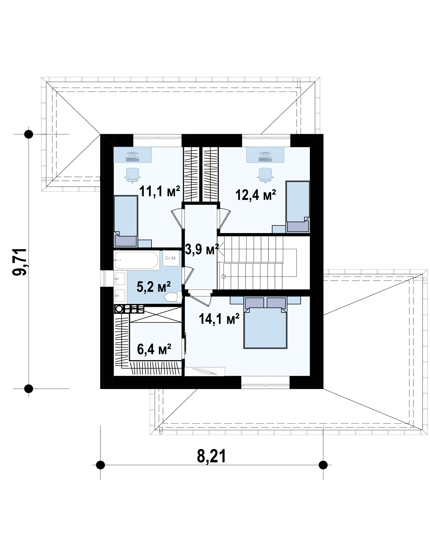
Второй этаж предназначен для спокойного сна и отдыха. Наверху три небольшие комнаты, вместительный гардероб, санузел с ванной. В каждой спальне есть место для встроенного шкафа или системы хранения. Внутреннюю планировку можно незначительно изменить для максимального комфорта будущих жильцов.

Аккредитованы в ведущих банках

Корзина
Ваша корзина пуста
Выберите в каталоге интересующий товар и нажмите кнопку "В корзину"
Отложенные товары
Отложенных товаров нет
Выберите в каталоге интересующий товар и нажмите кнопку "В избранное"
Заказать звонок